

HOGE Immobilien GmbH
Herr Frank Heße
017 ···
Nr. anzeigenPreise & Kosten
Provision für Käufer
Käuferprovision: 5,95 % (inklusive 19 % MwSt.)
Abschreibung/Anlage
Denkmalschutz-Afa
Lage
+ Meißen ist die Wiege Sachsen mit dem markanten Dom und der Albrechtsburg, dem ersten Schloßbau Deutschlands.
Bekannt ist die Stadt vor allem als Wein- und Porzellanstadt. Die älteste Porzellan Manufaktur Europas zieht Gäste aus aller Welt an.
+ Das Geschäftshaus liegt zentral, unmittelbar am Marktplatz von...
Das Haus
Baujahr
1750
Bezug
sofort
Energie & Heizung
Warum sehe ich diese Anzeige? – Du siehst diese Anzeige basierend auf Ihrer Navigation auf unserer Website und den Suchkriterien, die du verwendet hast.
Energieausweis: für diesen Gebäudetyp nicht notwendig
Weitere Energiedaten
Energieträger
Gas
Details
Objektbeschreibung
Zum Verkauf steht ein vielseitig nutzbares Geschäftshaus mit 4 Etagen in einem geschichtsträchtigen, unter Denkmalschutz stehenden Altbaugebäude mit attraktiver Sandsteinfassade aus dem 18. Jahrhundert. 1992 erfolgte eine weitgehende Sanierung und Erweiterung um ein separates Treppenhaus.
Über 200 Jahre und mehrere...
Ausstattung
+ zentrale Lage im Herzen von Meißen
+ separates Treppenhaus
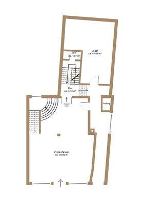
+ ca. 466 m² Gesamt-Nutzfläche
+ 12 Räume mit vielfältigen Einsatzmöglichkeiten
+ große Ladenfläche im Erdgeschoß
+ attraktive Raumhöhen von bis zu 3 Metern
+ praktische Etagenküchen
+ zusätzlich Keller und Lagerflächen
+ Lastenaufzug (bis...
Weitere Informationen
Sonstiges
Wir freuen uns auf Sie !
Ihre HOGE Immobilien GmbH
Ihr treuer Begleiter für Immobilien seit 1991
Bitte haben Sie Verständnis, dass dieses Angebot freibleibend und unverbindlich ist. Alle Informationen, Pläne und Daten wurden nach bestem Wissen gemacht und beruhen auf Angaben unserer...
Anbieter der Immobilie

HOGE Immobilien GmbH
Fasanenweg 39, 01454 Radeberg

Online-ID: 2krbg5u
Referenznummer: 267
Finde Angebote wie dieses
Hier geht es zu unserem Impressum, den Allgemeinen Geschäftsbedingungen, den Hinweisen zum Datenschutz und nutzungsbasierter Online-Werbung.