BoHolz Haus GmbH

Herr Wolfgang Müller

Einfamilienhaus in ruhiger und sonniger Wohnlage von Kirchentellinsfurt

€ 748.080
Kaufpreis
132,49 m²
Wohnfläche ca.
k.A.
Zimmer
400 m²
Grundstücksfl. ca.

Der Anbieter dieses Objekts hat gegenüber der AVIV Germany GmbH als Betreiber dieses Online-Marktplatzes erklärt, nicht als Unternehmer im Sinne des § 1 KSchG zu handeln. Die im Verbraucherschutzrecht der Union verankerten Verbraucherrechte (insbesondere Informationspflichten und Rücktritts- bzw. Widerrufsrechte) finden auf den Vertrag zwischen dem Anbieter des Objekts und Ihnen (dem Interessenten) keine Anwendung.

Gewerblicher Anbieter

Der Anbieter dieses Objekts hat gegenüber der AVIV Germany GmbH als Betreiber dieses Online-Marktplatzes erklärt, als Unternehmer im Sinne des § 1 KSchG zu handeln.

AdresseStraße nicht freigegeben
72138 Kirchentellinsfurt 
Auf Karte ansehen

Preise & Kosten

Kaufpreis € 748.080

Provision für Käufer

4% auf den Grundstücksanteil von € 254.000

Lage

Das Grundstück befindet sich in bevorzugter, ruhiger Wohnlage in Kirchentellinsfurt.
Kirchentellinsfurt ist eine Gemeinde jeweils etwa sieben Kilometer nordöstlich von Tübingen und nordwestlich von Reutlingen gelegen. Sie gehört zur Region Neckar-Alb und zur europäischen Metropolregion Stuttgart.

Das Haus

Baujahr

2026

Bezug

2026

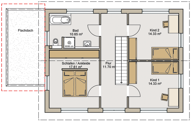
  • voll unterkellert, Dach ausgebaut
  • Bad mit Wanne und Dusche, Gäste-WC
  • offene Küche
  • Böden: Fliesenboden
  • Fenster: Kunststofffenster
  • Weitere Räume: Abstellraum

Energie & Heizung

Weitere Energiedaten

Haustyp

KfW 55

Energieträger

Elektro

Heizungsart

Luft-/Wasser-Wärmepumpe, Zentralheizung

Details

Objektbeschreibung

Objektbeschreibung
Dieser Hausentwurf gibt Ihnen die Möglichkeit unter Schrägen zu wohnen, ohne sich den Kopf anzuschlagen. Der besonders hohe Kniestock ermöglicht genug Freiraum, um sich bei der Möblierung auszutoben. Eine sich vom Wohn-Essbereich abgrenzende ist in diesem Hausentwurf eingeplant und schafft damit einen...

Mehr anzeigen

Weitere Informationen

Besichtigungstermine
Sehr gerne stehen wir für persönliche Gespräche zur Verfügung und freuen uns über Ihre Kontaktaufnahme.

Stichworte
Zustand: Erstbezug, projektiert
Versorgung: Städtische Wasserversorgung, Städtische Stromversorgung

Anbieter der Immobilie

Partner

BoHolz Haus GmbH

Neuffener Straße 3 , 72574 Bad Urach

user

Herr Wolfgang Müller

Dein Ansprechpartner

Anbieter-Website Anbieter-Profil Anbieter-Impressum

Online-ID: 2krgp58

Finde Angebote wie dieses

imageimageimage

Hier geht es zu unserem Impressum, den Allgemeinen Geschäftsbedingungen, den Hinweisen zum Datenschutz und nutzungsbasierter Online-Werbung.