

Edilfin
Frau Stefania Ravelli
+39 ···
Nr. anzeigenPreise & Kosten
Provision für Käufer
4%
Die Wohnung
Wohnungslage
Erdgeschoss
Derzeitige Nutzung
frei
Wohnanlage
Energie & Heizung
Warum sehe ich diese Anzeige? – Du siehst diese Anzeige basierend auf Ihrer Navigation auf unserer Website und den Suchkriterien, die du verwendet hast.
Weitere Energiedaten
Energieträger
Elektro, Solar
Heizungsart
Fußbodenheizung
Details
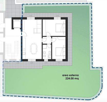
Objektbeschreibung
Ref: EB-035-461
LONATO DEL GARDA, ZENTRALE LAGE, NEUE WOHNUNGEN, Klasse A3.
Wenige Kilometer von den berühmtesten Stränden des Gardasees und Veronas entfernt, in günstiger Nähe zu allen Dienstleistungen und den wichtigsten Verkehrswegen, bieten wir neue DREIZIMMERWOHNUNGEN DER NEUESTEN GENERATION der Klasse A3 und...
Weitere Informationen
Stichworte
Versorgung: Städtische Wasserversorgung, Städtische Stromversorgung
Anbieter der Immobilie
Edilfin
Via Giorgio Strehler 19, 25080 Manerba del Garda

Online-ID: 2krnt5m
Referenznummer: 33091035-462
Finde Angebote wie dieses
Hier geht es zu unserem Impressum, den Allgemeinen Geschäftsbedingungen, den Hinweisen zum Datenschutz und nutzungsbasierter Online-Werbung.