

Volksbank Immobilien Münsterland GmbH
Herr Jona Brüning
025 ···
Nr. anzeigenPreise & Kosten
Kaution
3.290,00 3.290,00 € - 2 Monatsmieten
Provision für Mieter
Bitte beachte, das Angebot kann bei Vertragsabschluss die Zahlung einer Provision beinhalten. Weitere Informationen erhältst Du vom Anbieter.
Warum sehe ich diese Anzeige? – Du siehst diese Anzeige basierend auf Ihrer Navigation auf unserer Website und den Suchkriterien, die du verwendet hast.
Lage
Büro/Praxis oder Einzelhandel in der Nähe des Marktplatzes von Rheine-Innenstadt, links der Ems
Auf dem attraktiven Marktplatz und in der belebten Innenstadt können Sie nicht nur wunderbar shoppen, wie z.B. im Ems Forum oder in der neuen Ems Galerie, sondern auch in einem der zahlreichen Cafés und Restaurants das Leben...
Büro-/Praxisfläche
Kategorie
Bürofläche
Baujahr
2021
Bezug
ab sofort!
Geschoss
Erdgeschoss
Energie & Heizung
Warum sehe ich diese Anzeige? – Du siehst diese Anzeige basierend auf Ihrer Navigation auf unserer Website und den Suchkriterien, die du verwendet hast.
Wärme
Energieausweistyp
Bedarfsausweis
Gebäudetyp
Nicht-Wohngebäude
Baujahr laut Energieausweis
2021
Wesentliche Energieträger
GAS
Gültigkeit
bis 23.05.2032
Endenergiebedarf (Wärme)
26,10 kWh/(m²·a)
Weitere Energiedaten
Energieträger
Erdwärme, Gas
Heizungsart
Fußbodenheizung
Details
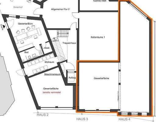
Objektbeschreibung
Zentraler geht´s nicht! - Büro/Praxis oder Einzelhandel im Herzen von Rheine!
Am modernisierten Marktplatz von Rheine steht dieser hochwertige Neubau mit insgesamt 13 Wohn- und 3 Gewerbeeinheiten. Die direkte Lage zum Stadtzentrum bietet viele Möglichkeiten für die zukünftige Nutzung.
Exklusiv dürfen wir Ihnen...
Ausstattung
- Sole-Wasser Wärmepumpe (Erdwärme) kombiniert mit Spitzenlast Brennwertkessel (Erdgas)
- veredelter Rohbau:
-> glatte Oberfläche an den Wänden
-> Heizung
-> Sanitär
-> Unterverteilung Strom & Medien
1.645,00€ netto zzgl. 312,55€ gesetzl. MwSt. (19%)
zzgl...
Preisinformation
Nettokaltmiete: 1.645,00 EUR
Weitere Informationen
Sonstiges
Hat dieses Angebot Ihr Interesse geweckt?
Gerne schicken wir Ihnen weitere Unterlagen und vereinbaren anschließend einen Besichtigungstermin mit Ihnen. Detaillierte Auskunft geben wir Ihnen auch in einem persönlichen oder telefonischen Gespräch.
Rufen Sie uns einfach unter der Telefonnummer: 0251 5005 5911...
Anbieter der Immobilie
Volksbank Immobilien Münsterland GmbH
Neubrückenstr. 66, 48143 Münster

Online-ID: 2krpt5x
Referenznummer: 20691
Finde Angebote wie dieses
Hier geht es zu unserem Impressum, den Allgemeinen Geschäftsbedingungen, den Hinweisen zum Datenschutz und nutzungsbasierter Online-Werbung.