
hallenpool GmbH & Co. KG
Herr Oliver Nitschke
004 ···
Nr. anzeigenPreise & Kosten
Kaution
nach Absprache
Provision für Mieter
provisionsfrei
Warum sehe ich diese Anzeige? – Du siehst diese Anzeige basierend auf Ihrer Navigation auf unserer Website und den Suchkriterien, die du verwendet hast.
Lage
Das Gewerbeobjekt befindet sich im unterfränkischen Rottendorf - einem wirtschaftsstarken Standort am östlichen Rand des Stadtgebiets von Würzburg. Die Gemeinde zeichnet sich durch ihre ausgezeichnete Infrastruktur, die Nähe zur Autobahn A3 sowie die sehr gute Erreichbarkeit mit öffentlichen Verkehrsmitteln...
Die Industriefläche
Kategorie
Produktionshalle
Baujahr
1973
Bezug
ab 2026
Energie & Heizung
Warum sehe ich diese Anzeige? – Du siehst diese Anzeige basierend auf Ihrer Navigation auf unserer Website und den Suchkriterien, die du verwendet hast.
Energieausweis: für diesen Gebäudetyp nicht notwendig
Details
Objektbeschreibung
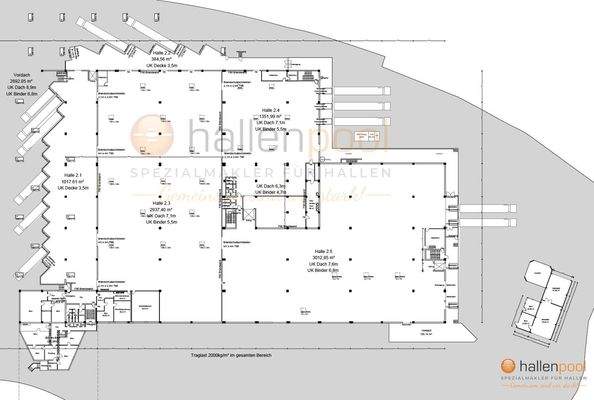
Das Objekt befindet sich auf einem großzügigen Gewerbegrundstück mit ca. 30.000?m² Fläche und wird derzeit umfassend zu einem modernen und vielseitig nutzbaren Gewerbepark umgebaut. Insgesamt stehen noch rund 8.626,39 ?m² flexibel nutzbare Hallen-, Lager-, Produktions- und Büroflächen zur Verfügung. Die Flächen sind teilbar...
Ausstattung
Die Immobilie wird derzeit umfassend saniert und modernisiert. Ziel ist eine hochfunktionale und zugleich optisch ansprechende Nutzungseinheit für Industrie, Logistik und Gewerbe. Dabei entstehen u.?a.:
- 23 Anlieferungsrampen für eine reibungslose Lkw-Logistik
- Ebenerdige Lkw-Tore für flexible Be- und...
Preisinformation
100 Stellplätze
Weitere Informationen
Sonstiges
Haftungsausschluss:
Alle in diesem Angebot enthaltenen Angaben, Abmessungen und Preisangaben beruhen auf Angaben des Vermieters/Verkäufers (oder eines Dritten). hallenpool übernimmt hierfür keine Haftung. Die Haftung von hallenpool wird auf Vorsatz und grobe Fahrlässigkeit beschränkt. Bei den Bildern...
Anbieter der Immobilie
hallenpool GmbH & Co. KG
Marktstr.10, 56564 Neuwied
Online-ID: 2krrs5u
Referenznummer: ON769
Finde Angebote wie dieses
Hier geht es zu unserem Impressum, den Allgemeinen Geschäftsbedingungen, den Hinweisen zum Datenschutz und nutzungsbasierter Online-Werbung.