
Evernest GmbH
Jens Markus Diegelmann
+49 ···
Nr. anzeigenPreise & Kosten
Provision für Käufer
5.98 inkl. MwSt.
Bei Abschluss eines notariellen Kaufvertrages ist eine Käuferprovision vom Käufer in Höhe von 5.98 % inkl. MwSt. aus dem Kaufpreis fällig.
Lage
Euskirchen ist eine lebendige Kreisstadt im Süden Nordrhein-Westfalens, gelegen in der fruchtbaren Zülpicher Börde am nördlichen Rand der Eifel. Die Stadt befindet sich etwa 25 Kilometer südwestlich von Bonn und 35 Kilometer südlich von Köln und verbindet damit die Ruhe des ländlichen Umlands mit der Nähe zu zwei bedeutenden...
Das Haus
Kategorie
Mehrfamilienhaus
Baujahr
1974
Energie & Heizung
Warum sehe ich diese Anzeige? – Du siehst diese Anzeige basierend auf Ihrer Navigation auf unserer Website und den Suchkriterien, die du verwendet hast.
Energieausweistyp
Bedarfsausweis
Gebäudetyp
Wohngebäude
Effizienzklasse
D
Endenergiebedarf
129,01 kWh/(m²·a)
Weitere Energiedaten
Energieträger
Gas
Details
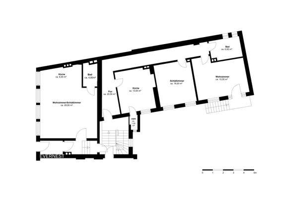
Objektbeschreibung
Mitten im Zentrum von Euskirchen befindet sich dieses beeindruckende Investitionsobjekt. Das hochwertig sanierte Mehrfamilienhaus überzeugt durch seine zentrale Lage, solide Renditeaussichten und den hervorragenden Gesamtzustand.
Die Immobilie wurde im Jahr 2025 umfassend renoviert, um modernen Wohnansprüchen gerecht...
Ausstattung
Schöne Küchen
aufwendig sanierte Bäder
tolle Fliesen im Wohn-Essbereich
Balkon
großzügige Räume
3 m Deckenhöhe
Weitere Informationen
Stichworte
Nutzfläche: 11,00 m², Anzahl der Schlafzimmer: 13, Anzahl der Badezimmer: 6, Anzahl Balkone: 4, Balkon-Terrassen-Fläche: 2,00 m², 3 Etagen, modernisiert
Anbieter der Immobilie
Online-ID: 2krrx5q
Referenznummer: L-JC3JD6E
Finde Angebote wie dieses
Hier geht es zu unserem Impressum, den Allgemeinen Geschäftsbedingungen, den Hinweisen zum Datenschutz und nutzungsbasierter Online-Werbung.