




1 / 15



1 / 15

Sonstiges zum Kauf • provisionsfrei • als Kapitalanlage geeignet407204 €407.204 €3 Zimmer • 106,4 m²
407204 €407.204 €
3 Zimmer • 106,4 m²
DACHGESCHOSS: 150.000?€ KfW & 45.000€ Zuschuss-Steuern in Vermögen wandeln-Denkmal-AfA (§7i EStG)!
Nutzen Sie die steuerlichen Vorteile der Denkmal-AfA nach § 7i/7h EStG - ideal für Kapitalanleger.
Ihre Steuerersparnis hängt von Ihrer individuellen Einkommens- und Steuersituation ab.
Hinweis: Keine Steuerberatung - unsere Berechnungen dienen lediglich zu Informationszwecken.
Interesse an einer individuellen Analyse? Lassen Sie uns Ihre persönlichen Vorteile berechnen!
Ihre Highlights auf einen Blick:
Objektart: Einzeldenkmal mit 70 % Sonder-AfA.
100 % der Sanierungskosten können steuerlich geltend gemacht werden, verteilt über 12 Jahre (8 Jahre à 9 %, 4 Jahre à 7 %).
Einzigartige Fördermöglichkeiten:
KfW-Darlehen bis zu 150.000 € pro Wohneinheit mit 30 % Tilgungszuschuss
Nachhaltige Sanierung:
Effizienzhaus-Denkmal-Standard mit Energieeffizienzklasse A - zukunftssicher, umweltfreundlich und mit niedrigen Energiekosten.
Historischer Charme trifft auf Moderne:
Erstbezug nach Kernsanierung - ein Einzeldenkmal mit moderner Technik und langfristigem Wertsteigerungspotenzial.
Hohes Mietpotenzial:
Barrierearme, altersgerechte Wohnungen mit gehobener Ausstattung - ideal für eine breite Zielgruppe.
Flexible Nutzungsmöglichkeiten:
Wohnflächen von ca. 38 m² bis 137 m² - geeignet für unterschiedliche Mieterprofile oder zur Eigennutzung.
Details zur Immobilie:
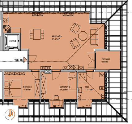
Wohnfläche: Ca. 106,39 m², 3 Zimmer
Raumaufteilung:
Großzügiger Wohn-Küche-Ess-Bereich, angrenzende Terrasse (ca. 6,50m²), 2 weitere separate Zimmer - vielseitig nutzbar.
Exklusive Ausstattung:
Edle Parkettböden, Fußbodenheizung, moderne Fliesen und Glasfaseranschluss - hochwertig und zukunftssicher.
Stellplätze:
2 Außenstellplätze (je 8.500 €) inklusive (einer davon optional)- komfortables Parken vor Ort.
Praktischer Stauraum:
Ca. 5,78 m² großer Kellerraum - ideal für Mieter.
Bezugsfertig: Oktober 2026 (Gemeinschaftseigentum: Ende November 2026).
Ihre Vorteile als Kapitalanleger:
Attraktive Renditen:
Steuerliche Vorteile und KfW-Förderungen ermöglichen eine maximale Steueroptimierung.
Nachhaltige Wertsteigerung:
Sanierte Denkmäler sind wertbeständig und gefragt - profitieren Sie von langfristigem Vermögenszuwachs.
Hohe Nachfrage:
Barrierearme und energieeffiziente Wohnungen mit moderner Ausstattung treffen den Puls der Zeit.
Zukunftssichere Immobilie:
Historische Architektur kombiniert mit nachhaltigen Standards - ein Plus für Mieter und Investoren.
Erstklassige Lage:
Historischer Ortskern von Rehburg-Loccum, Nähe Steinhuder Meer - beste Infrastruktur und Lebensqualität.
Zusammenfassung des Gesamtobjekts:
Objekttyp: Einzeldenkmal - Mehrfamilienhaus mit 17 Einheiten.
Wohnflächen: Ca. 38 m² - 137 m².
Grundstücksgröße: Ca. 2.171 m².
Baujahr: 1752 - umfassend kernsaniert.
Ausstattung: Aufzug, energieeffiziente Technik, barrierearme Gestaltung.
Stellplätze: 26 Außenstellplätze verfügbar.
Ihre Steuerersparnis hängt von Ihrer individuellen Einkommens- und Steuersituation ab.
Hinweis: Keine Steuerberatung - unsere Berechnungen dienen lediglich zu Informationszwecken.
Interesse an einer individuellen Analyse? Lassen Sie uns Ihre persönlichen Vorteile berechnen!
Ihre Highlights auf einen Blick:
Objektart: Einzeldenkmal mit 70 % Sonder-AfA.
100 % der Sanierungskosten können steuerlich geltend gemacht werden, verteilt über 12 Jahre (8 Jahre à 9 %, 4 Jahre à 7 %).
Einzigartige Fördermöglichkeiten:
KfW-Darlehen bis zu 150.000 € pro Wohneinheit mit 30 % Tilgungszuschuss
Nachhaltige Sanierung:
Effizienzhaus-Denkmal-Standard mit Energieeffizienzklasse A - zukunftssicher, umweltfreundlich und mit niedrigen Energiekosten.
Historischer Charme trifft auf Moderne:
Erstbezug nach Kernsanierung - ein Einzeldenkmal mit moderner Technik und langfristigem Wertsteigerungspotenzial.
Hohes Mietpotenzial:
Barrierearme, altersgerechte Wohnungen mit gehobener Ausstattung - ideal für eine breite Zielgruppe.
Flexible Nutzungsmöglichkeiten:
Wohnflächen von ca. 38 m² bis 137 m² - geeignet für unterschiedliche Mieterprofile oder zur Eigennutzung.
Details zur Immobilie:
Wohnfläche: Ca. 106,39 m², 3 Zimmer
Raumaufteilung:
Großzügiger Wohn-Küche-Ess-Bereich, angrenzende Terrasse (ca. 6,50m²), 2 weitere separate Zimmer - vielseitig nutzbar.
Exklusive Ausstattung:
Edle Parkettböden, Fußbodenheizung, moderne Fliesen und Glasfaseranschluss - hochwertig und zukunftssicher.
Stellplätze:
2 Außenstellplätze (je 8.500 €) inklusive (einer davon optional)- komfortables Parken vor Ort.
Praktischer Stauraum:
Ca. 5,78 m² großer Kellerraum - ideal für Mieter.
Bezugsfertig: Oktober 2026 (Gemeinschaftseigentum: Ende November 2026).
Ihre Vorteile als Kapitalanleger:
Attraktive Renditen:
Steuerliche Vorteile und KfW-Förderungen ermöglichen eine maximale Steueroptimierung.
Nachhaltige Wertsteigerung:
Sanierte Denkmäler sind wertbeständig und gefragt - profitieren Sie von langfristigem Vermögenszuwachs.
Hohe Nachfrage:
Barrierearme und energieeffiziente Wohnungen mit moderner Ausstattung treffen den Puls der Zeit.
Zukunftssichere Immobilie:
Historische Architektur kombiniert mit nachhaltigen Standards - ein Plus für Mieter und Investoren.
Erstklassige Lage:
Historischer Ortskern von Rehburg-Loccum, Nähe Steinhuder Meer - beste Infrastruktur und Lebensqualität.
Zusammenfassung des Gesamtobjekts:
Objekttyp: Einzeldenkmal - Mehrfamilienhaus mit 17 Einheiten.
Wohnflächen: Ca. 38 m² - 137 m².
Grundstücksgröße: Ca. 2.171 m².
Baujahr: 1752 - umfassend kernsaniert.
Ausstattung: Aufzug, energieeffiziente Technik, barrierearme Gestaltung.
Stellplätze: 26 Außenstellplätze verfügbar.
Merkmale
- 4 Geschosse
- Einbauküche
- Personenaufzug
- Keller
- 2 Stellplätze: 2 Außen-Stellplätze
- Balkon
- Barrierefrei
Grundrisse
Grundrisse
1 / 1
Realisiere Dein Projekt
Bausubstanz und Energie
Energieausweis
A
- Baujahr2025
Preisdetails
Kaufpreis
407204 €407.204 €
Provision für Käufer
provisionsfrei; Provisionsfrei für den Käufer.
Weitere Preisinformationen
2 Stellplätze
Geschätzte Gesamtkosten
407.204 €1
Kaufpreis
407.204 €
1Der angezeigte Wert ist eine automatisch berechnete Schätzung von immowelt.
Lage

Bad Rehburg, Rehburg-Loccum (31547)
Der Anbieter hat die genaue Adresse nicht freigegeben
Attraktive Lage "Parkresidenz Bad Rehburg": Natur, Kultur und beste Anbindung
Die Parkresidenz Bad Rehburg besticht durch seine malerische Lage inmitten sanfter Hügel und grüner Wälder. Umgeben von gepflegten Gartenanlagen und historischen Parks bietet die Umgebung zahlreiche Freizeitmöglichkeiten wie Wanderungen, Radtouren und Wassersport am nahegelegenen Steinhuder Meer. Trotz der ruhigen Lage profitieren die Bewohner von einer ausgezeichneten Infrastruktur: Hannover und Bielefeld sind in weniger als einer Stunde erreichbar, was den Standort besonders attraktiv für Pendler macht.
Makrolage
Beste Anbindung für Beruf und Freizeit
Hannover: 40 Minuten mit dem Auto
Flughafen Hannover: 50 Minuten mit dem Auto
Autobahn A2: 35 Minuten entfernt
ICE-Bahnhof Nienburg: 33 Minuten entfernt
S-Bahn Lindhorst: 13,7 km entfernt
Große Arbeitgeber in der Nähe: Frischli Milchwerke: 4 Minuten entfernt, Heye International: 24 Minuten entfernt, Bauer Gruppe: 25 Minuten entfernt, CHR Hansen: 23 Minuten entfernt, Baywa AG: 26 Minuten entfernt, Göllner Spedition: 23 Minuten entfernt
NEU Airbus ab 2025 werden 300 hochqualifizierte Fachkräfte eingestellt.: 20 Minuten entfernt
Mikrolage - Naturnahe Lebensqualität und urbaner Komfort
Die Parkresidenz Bad Rehburg liegt in einer ruhigen Wohngegend, die eine perfekte Verbindung von Natur und städtischem Komfort bietet. Direkt gegenüber lädt der idyllische Kurpark mit einem charmanten Café-Restaurant zu entspannten Spaziergängen ein, während der angrenzende Wander- und Märchenweg für weitere Erholung sorgt.
Für den täglichen Bedarf liegt ein Supermarkt nur eine Minute entfernt, ebenso wie die Bushaltestelle und ein Hausarzt, die den Alltag komfortabel gestalten. Familien profitieren von der kurzen Entfernung zur Grundschule und zum Kindergarten (4 Minuten). In der Freizeit sorgen das Freibad (5 Minuten) und das Hallenbad (9 Minuten) für Abwechslung, während Sportbegeisterte das Fitnessstudio in 10 Minuten und den Golfclub Rehburg-Loccum in 11 Minuten erreichen.
Besonders hervorzuheben sind die Nähe zum Dino Park Münchehagen (1 km entfernt), der sowohl Kinder als auch Erwachsene begeistert, sowie das Steinhuder Meer (5 km entfernt) mit seinen zahlreichen Freizeit- und Wassersportmöglichkeiten. Die historische Promenade Steinhude (9 km) und das beeindruckende Schloss Sachsenhagen (8 km) bieten weitere attraktive Ausflugsziele in unmittelbarer Umgebung.
Diese harmonische Verbindung von naturnahem Leben, Freizeitmöglichkeiten und einer hervorragenden Infrastruktur macht das Parkresidenz Bad Rehburg zu einem perfekten Wohnort für Familien, Naturliebhaber und Berufspendler.
Vielseitige Region für Eigennutzer und Kapitalanleger
Ob als privates Zuhause oder Kapitalanlage - die Region um Bad Rehburg vereint Naturerlebnisse, eine starke wirtschaftliche Grundlage und eine hervorragende Anbindung. Sowohl Eigennutzer als auch Kapitalanleger profitieren von der attraktiven Lage und den zukunftssicheren Investitionschancen.
Die Parkresidenz Bad Rehburg besticht durch seine malerische Lage inmitten sanfter Hügel und grüner Wälder. Umgeben von gepflegten Gartenanlagen und historischen Parks bietet die Umgebung zahlreiche Freizeitmöglichkeiten wie Wanderungen, Radtouren und Wassersport am nahegelegenen Steinhuder Meer. Trotz der ruhigen Lage profitieren die Bewohner von einer ausgezeichneten Infrastruktur: Hannover und Bielefeld sind in weniger als einer Stunde erreichbar, was den Standort besonders attraktiv für Pendler macht.
Makrolage
Beste Anbindung für Beruf und Freizeit
Hannover: 40 Minuten mit dem Auto
Flughafen Hannover: 50 Minuten mit dem Auto
Autobahn A2: 35 Minuten entfernt
ICE-Bahnhof Nienburg: 33 Minuten entfernt
S-Bahn Lindhorst: 13,7 km entfernt
Große Arbeitgeber in der Nähe: Frischli Milchwerke: 4 Minuten entfernt, Heye International: 24 Minuten entfernt, Bauer Gruppe: 25 Minuten entfernt, CHR Hansen: 23 Minuten entfernt, Baywa AG: 26 Minuten entfernt, Göllner Spedition: 23 Minuten entfernt
NEU Airbus ab 2025 werden 300 hochqualifizierte Fachkräfte eingestellt.: 20 Minuten entfernt
Mikrolage - Naturnahe Lebensqualität und urbaner Komfort
Die Parkresidenz Bad Rehburg liegt in einer ruhigen Wohngegend, die eine perfekte Verbindung von Natur und städtischem Komfort bietet. Direkt gegenüber lädt der idyllische Kurpark mit einem charmanten Café-Restaurant zu entspannten Spaziergängen ein, während der angrenzende Wander- und Märchenweg für weitere Erholung sorgt.
Für den täglichen Bedarf liegt ein Supermarkt nur eine Minute entfernt, ebenso wie die Bushaltestelle und ein Hausarzt, die den Alltag komfortabel gestalten. Familien profitieren von der kurzen Entfernung zur Grundschule und zum Kindergarten (4 Minuten). In der Freizeit sorgen das Freibad (5 Minuten) und das Hallenbad (9 Minuten) für Abwechslung, während Sportbegeisterte das Fitnessstudio in 10 Minuten und den Golfclub Rehburg-Loccum in 11 Minuten erreichen.
Besonders hervorzuheben sind die Nähe zum Dino Park Münchehagen (1 km entfernt), der sowohl Kinder als auch Erwachsene begeistert, sowie das Steinhuder Meer (5 km entfernt) mit seinen zahlreichen Freizeit- und Wassersportmöglichkeiten. Die historische Promenade Steinhude (9 km) und das beeindruckende Schloss Sachsenhagen (8 km) bieten weitere attraktive Ausflugsziele in unmittelbarer Umgebung.
Diese harmonische Verbindung von naturnahem Leben, Freizeitmöglichkeiten und einer hervorragenden Infrastruktur macht das Parkresidenz Bad Rehburg zu einem perfekten Wohnort für Familien, Naturliebhaber und Berufspendler.
Vielseitige Region für Eigennutzer und Kapitalanleger
Ob als privates Zuhause oder Kapitalanlage - die Region um Bad Rehburg vereint Naturerlebnisse, eine starke wirtschaftliche Grundlage und eine hervorragende Anbindung. Sowohl Eigennutzer als auch Kapitalanleger profitieren von der attraktiven Lage und den zukunftssicheren Investitionschancen.
Weitere Informationen
Sonstiges
Alle Informationen oder Angaben in diesem Exposé (Bspw. Objektbeschreibung, Abmessungen, Grundrisse- Flächenangaben von 1000Hands AG, Preisangaben, Flächenberechnungen etc.) basieren auf Angaben Dritter. Unser Unternehmen übernimmt keine Garantie für die Richtigkeit, Genauigkeit und Vollständigkeit dieser Angaben. Die textlichen Beschreibungen und Illustrationen auch bspw. aus Unterlagen von 1000Hands AG, dienen lediglich zur Veranschaulichung und Visualisierung von Ausstattungen. Grundrisse, Ansichten und Ausstattungen basieren auf Daten, die sich im Verlauf weiterer Planungsphasen ändern können. Es kann zu Abweichungen kommen, weshalb diese Bilder, Zeichnungen, textlichen Beschreibungen usw. unverbindlich sind und keine vertragliche Grundlage darstellen. Es erfolgt keine steuerliche Beratung. Unsere Information und Angaben im Exposee sowie unseren Musterberechnungen, basieren ausschließlich auf den Angaben des Verkäufer. Sie dienen lediglich zu Informationszwecken. Weiterhin handelt es sich bei der angegebenen Nettokaltmiete bei Objekten die nach der MaBV (Makler- § Bauträgerverordnung) verkauft werden, um eine prognostizierte Nettokaltmiete.Die INCASA Immobilien GmbH haftet bei Vorsatz und grober Fahrlässigkeit. Im Falle einfacher Fahrlässigkeit haftet die INCASA Immobilien GmbH nur bei Verletzung wesentlicher Rechte und Pflichten, die sich nach dem Inhalt und Zweck des Maklervertrages ergeben. In diesem Fall ist die Haftung der INCASA Immobilien GmbH auf den vorhersehbaren, vertragstypischen Schaden begrenzt. Diese Haftungsbeschränkungen gelten nicht für Schäden aus der Verletzung des Lebens, des Körpers oder der Gesundheit oder soweit eine Garantie übernommen wurde. Soweit die Schadensersatzhaftung der INCASA Immobilien GmbH gegenüber ausgeschlossen oder beschränkt ist, gilt dies auch für eine persönliche Schadensersatzhaftung ihrer Arbeitnehmer, Mitarbeiter und Vertreter. Der INCASA Immobilien GmbH ist es gestattet, auch für den Verkäufer provisionspflichtig tätig zu werden. Die vertraglichen Rahmenbedingungen werden durch die notarielle Beurkundung für Käufer und Verkäufer gemeinsam verbindlich festgelegt. Steuerliche Aspekte sind mit einem Steuerberater zu klären und werden hier nicht dargestellt. Irrtümer und Zwischenverkauf sind vorbehalten.
Stichworte
Stellplatz vorhanden, Anzahl der Schlafzimmer: 2, Anzahl der Badezimmer: 1, Anzahl Balkone: 1, Balkon-Terrassen-Fläche: 6,50 m², Bundesland: Niedersachsen, 4 Etagen, Distanz zum Flughafen: 18.54, Distanz zum Hauptbahnhof: 14.78, Distanz zum Bus: 12.5
Weitere Services
Lust auf eine Besichtigung?
Eine Frage zur Immobilie?
Über den Anbieter
INCASA Immobilien GmbHMaklerbüro
Dirschauer Str. 9A, 12623 Berlin
6 Jahre Partnerschaft
Herr Sascha StechowDein Kontakt
Online-ID: 2krry5k
Referenznummer: Bad Rehburg WE16+Stpl. 17+opt.-KA

INCASA Immobilien GmbH
4,7/5Bewertung: 4,7 von 5 Sternen
Wie zufrieden bist du mit dieser Seite (nicht mit der Immobilie selbst)?