
Bau + Grund Nagel GmbH & Co KG
Frau Maria Droste
054 ···
Nr. anzeigenPreise & Kosten
Provision für Käufer
provisionsfrei
Lage
Gerne errichten wir für Sie auf Ihrem Baugrundstück Ihren Hauswunsch.
Wenn Sie noch auf der Suche sind nach einem geeigneten Grundstück, dann sind wir Ihnen gern behilflich.
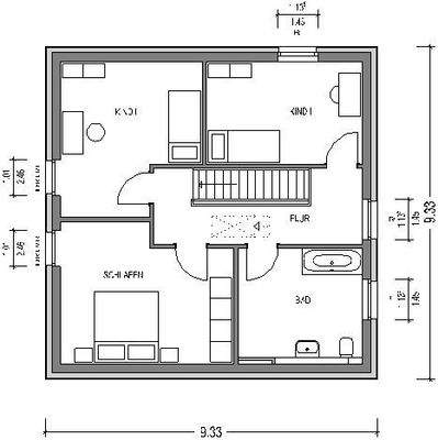
Das Haus
Kategorie
Einfamilienhaus
Baujahr
2025
Energie & Heizung
Warum sehe ich diese Anzeige? – Du siehst diese Anzeige basierend auf Ihrer Navigation auf unserer Website und den Suchkriterien, die du verwendet hast.
Energieausweistyp
Bedarfsausweis
Gebäudetyp
Wohngebäude
Baujahr laut Energieausweis
2025
Gültigkeit
17.12.2034 bis 18.12.2024
Effizienzklasse
A+
Endenergiebedarf
36,00 kWh/(m²·a)
Weitere Energiedaten
Haustyp
Massivhaus
Details
Objektbeschreibung
Für die Zukunft gebaut - Massiv Stein auf Stein!
Lassen Sie sich von unserem Neuen Hauskonzepten überzeugen. Wir bieten Ihnen moderne Technologie kombiniert mit altbewährte Handwerkskunst - Stein auf Stein gebaut.
Gerne unterbreiten wir Ihnen auch verschieden Grundstücksangebote, die von den umliegenden...
Weitere Informationen
Stichworte
Anzahl der Schlafzimmer: 3
Anbieter der Immobilie
Bau + Grund Nagel GmbH & Co KG
Friedrich-Menzefricke-Str. 4, 33775 Versmold
Online-ID: 2krsj56
Referenznummer: 600282553#FT6Qe
Finde Angebote wie dieses
Hier geht es zu unserem Impressum, den Allgemeinen Geschäftsbedingungen, den Hinweisen zum Datenschutz und nutzungsbasierter Online-Werbung.