
Deutsche Wohnwerte GmbH & Co.KG
KÖNIGSKINDER
062 ···
Nr. anzeigenPreise & Kosten
Kaution
7.200,00
Warum sehe ich diese Anzeige? – Du siehst diese Anzeige basierend auf Ihrer Navigation auf unserer Website und den Suchkriterien, die du verwendet hast.
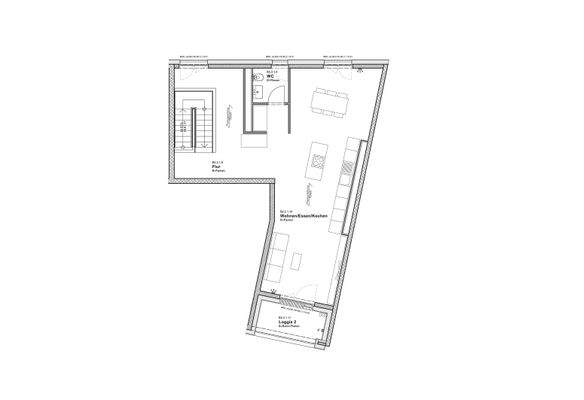
Die Wohnung
Kategorie
Maisonette
Wohnungslage
3. Geschoss
Bezug
sofort
Wohnanlage
Energie & Heizung
Warum sehe ich diese Anzeige? – Du siehst diese Anzeige basierend auf Ihrer Navigation auf unserer Website und den Suchkriterien, die du verwendet hast.
Energieausweistyp
Bedarfsausweis
Gebäudetyp
Wohngebäude
Wesentliche Energieträger
keine Angabe
Weitere Energiedaten
Heizungsart
Fußbodenheizung
Details
Objektbeschreibung
SPINELLIS GRÜNE MITTE
Willkommen im Quartier KÖNIGSKINDER auf dem Mannheimer SPINELLI-Areal - hier ist alles, was Sie im Alltag brauchen, nur einen Katzensprung entfernt. Ob Einkaufen im REWE-Markt, frische Backwaren und Kaffee bei der Bäckerei GÖRTZ oder die Kindertagesstätte und Ganztagsgrundschule für die Kleinen -...
Ausstattung
EIN ERSTER SCHRITT IN IHRE WOHNWELT
// Eichenparkettböden aus Massivholz in den Wohnräumen, Dielen und Fluren
// Hochwertige Feinsteinzeugfliesen in den Bädern, WCs und Hauswirtschaftsräumen
// Gesundes Raumklima durch Wohnraumbelüftung
// Fußbodenheizung
// Wasserenthärtungsanlage
// Hochwertige und...
Weitere Informationen
Sonstiges
BITTE BEACHTEN!Bei den Bildern handelt es sich um unverbindliche Visualisierungen und Bilder.
Stichworte
Nutzfläche: 10,15 m², Gesamtfläche: 141,66 m², Anzahl der Schlafzimmer: 3, Anzahl der Badezimmer: 2, Anzahl Balkone: 1, Anzahl Loggias: 1, Balkon-Terrassen-Fläche: 2,73 m², Kellerfläche: 10,15 m², 5...
Dokumente
Anbieter der Immobilie
Deutsche Wohnwerte GmbH & Co.KG
Langer Anger 9, 69115 Heidelberg
Online-ID: 2krvp58
Referenznummer: MA_KK_B2.2.1
Finde Angebote wie dieses
Hier geht es zu unserem Impressum, den Allgemeinen Geschäftsbedingungen, den Hinweisen zum Datenschutz und nutzungsbasierter Online-Werbung.