

Immobilien Maier
Herr Gerhard Maier
+49 ···
Nr. anzeigenPreise & Kosten
Provision für Käufer
3,57 % vom Kaufpreis inkl. MwSt.
Lage
Das Einfamilienhaus befindet sich in der malerischen Markt-Gemeinde Bad Birnbach, einer idyllischen Ortschaft im Herzen Bayerns, bekannt für ihre erholsamen Thermalquellen und die wunderschöne niederbayerische Landschaft. Eingebettet in eine ruhige und gepflegte Wohngegend, besticht diese Immobilie durch ihre direkte...
Das Haus
Kategorie
Einfamilienhaus
Baujahr
2025
Bezug
01.09.2026
Energie & Heizung
Warum sehe ich diese Anzeige? – Du siehst diese Anzeige basierend auf Ihrer Navigation auf unserer Website und den Suchkriterien, die du verwendet hast.
Energieausweistyp
Bedarfsausweis
Gebäudetyp
Wohngebäude
Baujahr laut Energieausweis
2025
Wesentliche Energieträger
LUFTWP
Gültigkeit
bis 15.06.2035
Effizienzklasse
A+
Endenergiebedarf
21,50 kWh/(m²·a)
Weitere Energiedaten
Heizungsart
Fußbodenheizung, Luft-/Wasser-Wärmepumpe
Details
Objektbeschreibung
Professionelles KAUFEN und VERKAUFEN MIT NIVEAU - mit DIPL.-Immobilienwirt (DIA) MAIER
Die exklusive Immobilienzeitung BELLEVUE hat uns 14 mal in Folge seit 2012 bis 2025 ausgezeichnet, eine der besten Maklerfirmen weltweit zu sein.
Die REDAKTION von FOCUS hat uns wiederholt auch 2024 unter die TOP-Makler...
Ausstattung
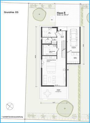
Diese attraktive Immobilie besticht durch hochwertige Ausstattungsmerkmale, die modernen Wohnkomfort garantieren. Sie verfügt über eine großzügige Terrasse, die zum Entspannen und Verweilen einlädt. Ein praktischer Carport ist ebenfalls vorhanden samt Geräteraum.
Offene Räume in einer hellen und freundlichen Atmosphäre...
Preisinformation
1 Carportplatz
Weitere Informationen
Sonstiges
- Ein guter Platz zum Leben! Sprechen Sie mit uns - JETZT -
Leben Sie da wo andere Urlaub machen, nämlich im größten Kur- und Golfgebiet Europas.
Genießen Sie von hier aus die weiteren Bäderstandorte, wie Bad Griesbach und Bad Füssing.
Diese verfügen, wie Bad Birnbach selbst, über ein...
Dokumente
Anbieter der Immobilie
Immobilien Maier
Pfarrkirchner Str. 17, 84364 Bad Birnbach

Online-ID: 2krvr5k
Referenznummer: 761
Finde Angebote wie dieses
Hier geht es zu unserem Impressum, den Allgemeinen Geschäftsbedingungen, den Hinweisen zum Datenschutz und nutzungsbasierter Online-Werbung.