Exklusive Neubauwohnung - urban und naturnah *PROVISIONSFREI*
Exklusive 3 Zimmer Neubauwohnung in moderner Wohnanlage mit 24 Einheiten.
Dieser Neubaukomplex als KfW-55 Effizienzhaus bietet mit 24 exklusiven Wohneinheiten sowohl Singles, Paaren als auch Familien einen idealen Lebensmittelpunkt. Ausgestattet mit bodentiefen Fenstern, Fußbodenheizung, top modernen Sanitäranlangen und auf Wunsch mit Smarthome, werden hier alle Wünsche hinsichtlich moderner und umweltbewusster Wohnqualität erfüllt.
Die 3 Zimmer Wohnung bietet auf ca. 93m² Wohnfläche einen cleveren Grundriss mit offenem Wohn-Essbereich und Küche, sowie 2 Schlafzimmern und Tageslichtbad. Weiterhin findet sich ein großzügiger Abstellraum, sowie ein großer Balkon mit rund 11m². Sie haben auch die Möglichkeit die innenliegenden Wände selbst zu gestalten und somit die Flexibilität frei nach Ihren Bedürfnissen selbst mit zu kreieren.
Die gehobene Ausstattung und die Möglichkeit zum Erwerb von Tiefgaragenstellplätzen runden das Angebot ab.
Die hohe Bau-Qualität, die schöne Umgebung und der Steuervorteil eines KfW-55 Effizienzhauses machen den Erwerb dieser Neubau-Wohnungen sowohl für Selbstbezieher als auch für Kapitalanleger sehr attraktiv.
FĂĽr mehr Informationen kontaktieren Sie uns gerne!
Merkmale
Balkon
* Provisionsfrei für Kaufende * KfW 55 * Tiefgaragenplatz (zzgl. 35.000 €) * Kellerraum * Fahrradstellraum * Aufzug / Barrierefrei * Balkon * Stellplätze für Kinderwagen * Elektrisch betriebene Rollläden * Videosprechanlage mit Farbmonitor * Hochdämmendes Mauerwerk und Luftwärmepumpe * Fenster mit Dreifachisolierverglasung * Fußbodenheizung mit Einzelraumregelung * Attraktive Kapitalanlage durch Steuervorteile der Degressive AfA
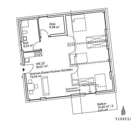
Grundrisse
Grundrisse
1 / 1
Realisiere Dein Projekt
Bausubstanz und Energie
Der Anbieter hat keine Informationen zu Energieverbrauch oder Zustand der Immobilie bereit gestellt.
Preisdetails
Kaufpreis
599000 €599.000 €
6.407,10 €/m²
Provision für Käufer
0% inkl. MwSt.
Geschätzte Gesamtkosten
668.304 €1
Kaufpreis
599.000 €
Kaufnebenkosten
69.304 €
2
Notarkosten (1,5%)
8.985 €
Grunderwerbsteuer (6%)
35.940 €
Provision für Käufer (3,57%)
21.384 €
Grundbucheintrag (0,5%)
2.995 €
1Der angezeigte Wert ist eine automatisch berechnete Schätzung von immowelt.
2Bei den Angaben handelt es sich um ortsübliche Werte. Individuelle Kosten können abweichen.
Lage
Sossenheim, Frankfurt am Main (65936)
Der Anbieter hat die genaue Adresse nicht freigegeben
Die Lage in Frankfurt Sossenheim besticht durch eine günstige Wohnlage mit vielerlei Vorzügen. Das Wohnobjekt fügt sich harmonisch in das historisch gewachsene Viertel ein, geprägt von einer guten Infrastruktur: In fußläufiger Entfernung befinden sich Geschäfte des täglichen Bedarfs, vom Bäcker bis zum Supermarkt. Das lebhafte Viertel bietet sowohl abwechslungsreiche Gastronomie wie auch die Nähe zu Frankfurts geschütztem Grüngürtel, der sich ideal zur Erholung eignet.
Sossenheim ist für seine Familienfreundlichkeit und ruhige Atmosphäre bekannt. Trotz der Nähe zur Natur verfügt das Objekt über eine ausgezeichnete Verkehrsanbindung. Die Fußgängerzone Höchsts, Rödelheim wie auch das Main-Taunus-Zentrum locken zum Flanieren und sind in zehn Minuten zu erreichen. Der Weg zur Arbeit in der Innenstadt, am Flughafen und im Industriepark Höchst, sowie der Gewerbestandort Eschborn gestaltet sich binnen wenigen Autominuten mühelos.
Eine gelungene Kombination aus urbanem Leben und Wohnqualität im Grünen in unmittelbarer Nähe zum Finanzzentrum Frankfurt am Main: Das 288 Westcourt verbindet Standortvorteile, die Wohnungseigentümer heute als Grundlage für exklusives Wohnen besonders schätzen: Urbanität und Nähe zur Natur, langjährige Tradition und topmoderner Wohnraum. Die Anbindung an öffentliche Verkehrsmittel wie Busse und Bahnen liegen in unmittelbarer Nähe, was sowohl den Weg zur Arbeit als auch die Erreichbarkeit der Frankfurter Innenstadt erleichtert. Über die direkt anliegenden Autobahnen A66 und A648 ist auch der Frankfurter Flughafen in weniger als 15 Minuten erreichbar.