

4TREE CAPITAL Real Estate GmbH
Frau Katrin Funk M. A.
+49 ···
Nr. anzeigenPreise & Kosten
Provision für Käufer
OHNE KÄUFERCOURTAGE!
Lage
BITTE BEACHTEN SIE AUCH UNSERE WEITEREN ANGABEN UNTER "DETAILS" & "SONSTIGES"
Das angebotene Baugrundstück befindet sich in der idyllischen Gemeinde Kakenstorf, die zum Landkreis Harburg in Niedersachsen gehört. Kakenstorf liegt nordwestlich des malerischen Naturparks Lüneburger Heide sowie ca. 30 km...
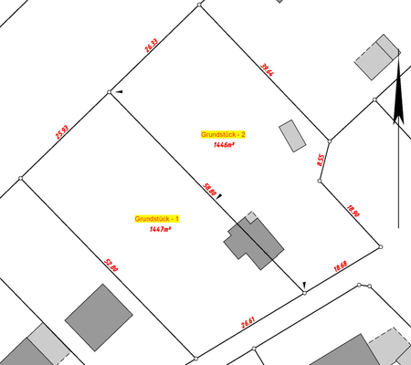
Das Grundstück
Details
Objektbeschreibung
Dieses aus dem Angebotsbestand der 4TREE CAPITAL Real Estate GmbH exklusiv und darüber hinaus COURTAGEFREI für den Erwerber angebotene, äußerst attraktive Baugrundstück (Nr. 2/2) mit einem rückzubauenden Bestandsgebäude richtet sich sowohl an interessierte Bauherren*innen als auch an Investoren & Bauträger und zeichnet...
Weitere Informationen
Sonstiges
WICHTIG: Telefonische Erstauskünfte zum vorliegenden Verkaufsobjekt werden nicht erteilt - bitte fordern Sie daher zunächst unser Exposé unter Angabe Ihres vollständigen Vor- und Zunamens, Ihrer Meldeadresse sowie Ihrer gültigen Telefonnummer auf der jeweiligen Internetplattform an. Nach Bestätigung unserer...
Anbieter der Immobilie
4TREE CAPITAL Real Estate GmbH
Neuer Wall 35, 20354 Hamburg

Online-ID: 2ks8x5r
Referenznummer: 380580
Finde Angebote wie dieses
Hier geht es zu unserem Impressum, den Allgemeinen Geschäftsbedingungen, den Hinweisen zum Datenschutz und nutzungsbasierter Online-Werbung.