


1 / 50



1 / 50
Sonstiges zum Kauf384000 €384.000 €230 m² • 635 m² Grundstück
384000 €384.000 €
230 m² • 635 m² Grundstück
Saniertes Wohn- u. Geschäftshaus mit fachwerklich historischer Substanz, Weinkeller, Festscheune und Sonnenterrasse
Bei dem Verkaufsobjekt handelt es sich um ein ca. 1855 erbautes sowie denkmalgeschütztes Fachwerkhaus mit solider Bausubstanz, welches zwischen 1998 und 2000 nach damalig gültigen öffentlich-rechtlichen Vorschriften umfassend saniert wurde. Durch die grundhafte Sanierung zur Verbesserung der Nutzungseigenschaften und des Brandschutzes, sowie Eingriffen in die Bausubstanz u.a. zur Verbesserung der Beleuchtung und Nutzbarkeit, ist zur Jahrtausendwende ein modernes hochwertiges Gebäude unter Einbeziehung unvergänglicher historischer Substanz entstanden. Bei dieser umfassend baulichen Ertüchtigung wurden, unter Einhaltung damaliger Standards zum Schallschutz und zur Energieeinsparverordnung, wesentliche Bauteile erneuert und teils neu geschaffen. Das Gebäude ist historisch gewachsen. Im Kern finden sich ca. 270 Jahre alte Bestandteile, wobei der Hauptteil des Gebäudes wahrscheinlich vor ca. 170 Jahren errichtet wurde und in der Folgezeit erweitert sowie umgebaut wurde. Aufgrund der baulichen Ertüchtigungen sollte hier als fiktives Baujahr, zwischen 1960 und 1970 angesetzt werden können. Das fachwerklich repräsentative Gebäude ist durch seine Lage für die Ortschaft ebenso charakterlich prägend, wie die in der Ortschaft befindlichen Drei- und Vierseitenhöfe aus dem 18. und 19. Jahrhundert mit eindrucksvollen Torbögen aus Sandsteinquadern.
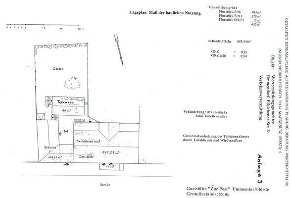
Das Objekt wird von dem derzeitigen Eigentümer bewohnt und wird unbewohnt, sowie ohne vorliegende Untervermietung zum Kauf angeboten. Die Liegenschaft mit 635 m² Grundstücksfläche, wovon das Haupt- und die Nebengebäude ca. 350 m² Grundfläche einnehmen, befindet sich an der ortsdurchquerenden Bundesstraße 245 nahe dem Ortskern. In den letzten 25 Jahren wurde das Wohn- und Geschäftshaus ausschließlich durch den Eigentümer genutzt. Aufgrund der hervorragenden Lage an der ortdurchquerenden Hauptstraße, betrieb der Eigentümer bis 2022 eine von ihm liebevoll ausgebaute Gastwirtschaft mit Vermietung von Gästezimmern und Eigennutzung der großzügigen Einliegerwohnung. Durch das Alleinstellungsmerkmal eines vorliegenden Vereinsraumes, eines gewölbeartigen Weinkellergastraumes, einer rustikal ausgebauten Festscheune und einem Biergarten auf einer großen Sonnenterrasse im fachwerklichen Ambiente, entwickelte sich die Gastwirtschaft für die Bewohner des Ortes und sämtlicher Nachbarortschaften zu einem gesellschaftlichen Lebensmittelpunkt. Die Räumlichkeiten für jegliche Anlässe mit geringen oder hohen Personenzahlen, sowie die vorliegenden Übernachtungsmöglichkeiten waren sehr beliebt und wurden ausgiebig für Feierlichkeiten, Veranstaltungen, Versammlungen und etliches mehr genutzt.
Die Nutzugsmöglichkeiten des Verkaufsobjektes sind sehr vielfältig. Ebenso vorstellbar wie die Wiederaufnahme des Gastwirtschaftsbetriebes mit Vermietung von Gästezimmern, wäre eine Umnutzung zu einem reinen Eventobjekt welches in dieser Region einzigartig wäre. Kulturelle Ereignisse wie Lesungen im Weinkeller, kleine Kabarettaufführungen unter freiem Himmel, privatatmosphärische Konzerte in der rustikalen Scheune, Kinoabende mit Filmklassikern und vieles mehr können sich zu einem Besuchermagnet in dieser Region entwickeln.
Ausführliche Informationen erhalten Interessenten im Exposé
Das Objekt wird von dem derzeitigen Eigentümer bewohnt und wird unbewohnt, sowie ohne vorliegende Untervermietung zum Kauf angeboten. Die Liegenschaft mit 635 m² Grundstücksfläche, wovon das Haupt- und die Nebengebäude ca. 350 m² Grundfläche einnehmen, befindet sich an der ortsdurchquerenden Bundesstraße 245 nahe dem Ortskern. In den letzten 25 Jahren wurde das Wohn- und Geschäftshaus ausschließlich durch den Eigentümer genutzt. Aufgrund der hervorragenden Lage an der ortdurchquerenden Hauptstraße, betrieb der Eigentümer bis 2022 eine von ihm liebevoll ausgebaute Gastwirtschaft mit Vermietung von Gästezimmern und Eigennutzung der großzügigen Einliegerwohnung. Durch das Alleinstellungsmerkmal eines vorliegenden Vereinsraumes, eines gewölbeartigen Weinkellergastraumes, einer rustikal ausgebauten Festscheune und einem Biergarten auf einer großen Sonnenterrasse im fachwerklichen Ambiente, entwickelte sich die Gastwirtschaft für die Bewohner des Ortes und sämtlicher Nachbarortschaften zu einem gesellschaftlichen Lebensmittelpunkt. Die Räumlichkeiten für jegliche Anlässe mit geringen oder hohen Personenzahlen, sowie die vorliegenden Übernachtungsmöglichkeiten waren sehr beliebt und wurden ausgiebig für Feierlichkeiten, Veranstaltungen, Versammlungen und etliches mehr genutzt.
Die Nutzugsmöglichkeiten des Verkaufsobjektes sind sehr vielfältig. Ebenso vorstellbar wie die Wiederaufnahme des Gastwirtschaftsbetriebes mit Vermietung von Gästezimmern, wäre eine Umnutzung zu einem reinen Eventobjekt welches in dieser Region einzigartig wäre. Kulturelle Ereignisse wie Lesungen im Weinkeller, kleine Kabarettaufführungen unter freiem Himmel, privatatmosphärische Konzerte in der rustikalen Scheune, Kinoabende mit Filmklassikern und vieles mehr können sich zu einem Besuchermagnet in dieser Region entwickeln.
Ausführliche Informationen erhalten Interessenten im Exposé
Merkmale
- 3 Geschosse
- 635 m² Grundstück
- 2 Stellplätze
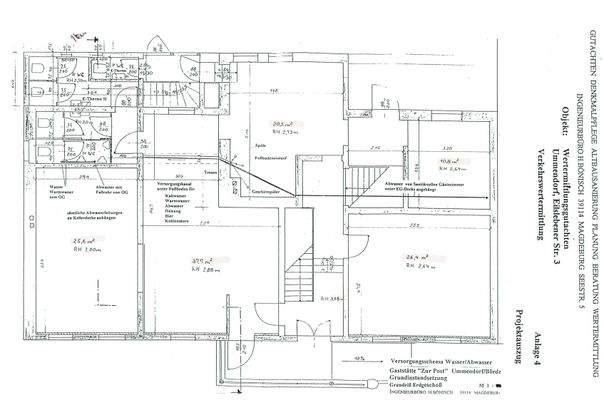
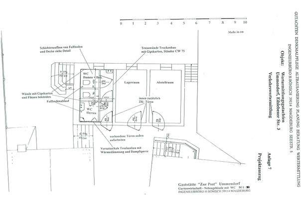
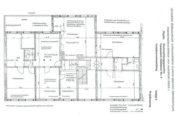
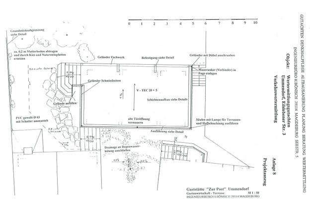
Grundrisse
Grundrisse
1 / 8
Realisiere Dein Projekt
Bausubstanz und Energie
Energieausweis
Ein Energieausweis ist für diesen Gebäudetyp nicht notwendig.
- Baujahr1855
Preisdetails
Kaufpreis
384000 €384.000 €
Provision für Käufer
6 % vom Kaufpreis zzgl. MwSt.
Geschätzte Gesamtkosten
407.040 €1
Kaufpreis
384.000 €
Kaufnebenkosten
23.040 €
2Provision für Käufer (6%)
23.040 €
1Der angezeigte Wert ist eine automatisch berechnete Schätzung von immowelt.
2Bei den Angaben handelt es sich um ortsübliche Werte. Individuelle Kosten können abweichen.
Lage

Eilslebener Straße 3, Ummendorf (39365)
Makrolage
Im westlichen Sachsen-Anhalt befindet sich die Ortschaft Ummendorf in ländlicher Region, ca. 17 Kilometer vor den Toren der niedersächsischen Stadt Helmstedt. Inmitten der Magdeburger Börde liegt die Gemeinde Ummendorf, die der Verbandgemeinde Obere Aller zugehörig ist. Aufgrund der Lage in einer sehr bedeutenden landwirtschaftlichen Region, die für ihre ertragreichen Löss-Schwarzböden über die Grenzen hinaus bekannt ist, wird die Region von ackerbaulicher Nutzung mit einer geringen Baudichte geprägt. Die flachwellige Landschaft mit viel Weitsicht verfügt über einen der fruchtbarsten Böden in Deutschland.
Die Gemeinde Ummendorf mit ca. 900 Einwohnern liegt an der Bundesstraße 245 und verfügt über eine gute überregionale Verkehrsinfrastruktur. Die nahegelegene Autobahn 2 mit der Anschlussstelle Allingersleben in ca. 7 Km Entfernung, verbindet die Region in östlicher Richtung mit der sachsen-anhaltinischen Landeshauptstadt Magdeburg und der Autobahn 14, sowie in westlicher Richtung mit der niedersächsischen Landeshauptstadt Hannover und der Autobahn 7. Von hier aus sind es lediglich ca. 25 Fahrminuten mit dem Pkw in die geschichtsträchtige Stadt Magdeburg mit dem ältesten gotischen Dom, dem Hundertwasserhaus und einer Vielzahl anderer kultureller Ziele.
Nähere Informationen erhalten Interessenten im Exposeè Mikrolage Die Immobilie befindet sich nur unweit vom Ortskern. Mit der zentralen Lage direkt an der ortsdurchquerenden Bundesstraße 245, bettet sich das Objekt in eine Reihe geschichtsträchtiger Fachwerkhäuser des 18. u. 19. Jahrhunderts ein. Von hier aus lassen sich Geschäfte des täglichen Bedarfs, die Grundschule, der Kindergarten und Freizeit orientierte Anlagen wie der Sportplatz des Ummendorfer e.V. fußläufig erreichen. Der Sportverein mit seinen einzelnen Sparten wie Fußball, Nordic Walking, Tischtennis, Gymnastik, Line Dance, Zumba und Wandern laden zu sportlichen und gesellschaftlichen Aktivitäten ein. Der durch die Ortschaft verlaufende Fluss Aller, lädt zudem zu feierabendlichen Spaziergängen, Kanutouren oder Angelausflüge ein.
Nähere Informationen erhalten Interessenten im Exposeè
Die Gemeinde Ummendorf mit ca. 900 Einwohnern liegt an der Bundesstraße 245 und verfügt über eine gute überregionale Verkehrsinfrastruktur. Die nahegelegene Autobahn 2 mit der Anschlussstelle Allingersleben in ca. 7 Km Entfernung, verbindet die Region in östlicher Richtung mit der sachsen-anhaltinischen Landeshauptstadt Magdeburg und der Autobahn 14, sowie in westlicher Richtung mit der niedersächsischen Landeshauptstadt Hannover und der Autobahn 7. Von hier aus sind es lediglich ca. 25 Fahrminuten mit dem Pkw in die geschichtsträchtige Stadt Magdeburg mit dem ältesten gotischen Dom, dem Hundertwasserhaus und einer Vielzahl anderer kultureller Ziele.
Nähere Informationen erhalten Interessenten im Exposeè Mikrolage Die Immobilie befindet sich nur unweit vom Ortskern. Mit der zentralen Lage direkt an der ortsdurchquerenden Bundesstraße 245, bettet sich das Objekt in eine Reihe geschichtsträchtiger Fachwerkhäuser des 18. u. 19. Jahrhunderts ein. Von hier aus lassen sich Geschäfte des täglichen Bedarfs, die Grundschule, der Kindergarten und Freizeit orientierte Anlagen wie der Sportplatz des Ummendorfer e.V. fußläufig erreichen. Der Sportverein mit seinen einzelnen Sparten wie Fußball, Nordic Walking, Tischtennis, Gymnastik, Line Dance, Zumba und Wandern laden zu sportlichen und gesellschaftlichen Aktivitäten ein. Der durch die Ortschaft verlaufende Fluss Aller, lädt zudem zu feierabendlichen Spaziergängen, Kanutouren oder Angelausflüge ein.
Nähere Informationen erhalten Interessenten im Exposeè
Weitere Informationen
Basisinformationen
- 1998 Kernsanierung Fachwerkhaus
- 2022 Dachneueindeckung
- Gasthof mit 2 Pensionszimmer (optional kann eine weitere separate Pensionswirtschaft mit 5 Gästezimmern/Bädern erworben werden)
- moderne Einliegerwohnung mit Balkon, 4Raum mit Einbauküche, Bad u. Gäste-WC
- Gaststube (brauereifrei) mit Abluft, Tresen, Schanksäule, 38 m², 45 Personen
- Vereinsraum mit Abluft, 26 m², 20-25 Personen
- Weinkeller (Gewölbekeller), 30 Personen, beheizbar
- Festscheune, Lehmbackofen u. offener Grill, Deckenheizstrahler, Theke mit Durchlaufkühler, 100 m², 35 Personen
- Sonnenterrasse, 44 m², 20-25 Personen
- Grünfläche / Gartenbereich
- Pkw-Stellplätze außen
- Behindertenrampe
- Herren- u. Damentoilette für d. Innenbereich, sowie Personal WC
- sanierte Stallung mit WC's für den Außenbereich
- Sammelheizung Gas mit Solarunterstützung (5 Module) u. 2 große Warmwasserbehälter
- Fettabscheider
- Bierkühler mit Begleitkühlfunktion, Gasherd, Küchentechnik u. Geschirr
- Mobiliar, teilweise hochwertige Eichentische- u. Bänke
- Medienversorgung anliegend
- dekoratives Fachwerk mit freiliegenden Eichenbalken, Lehmziegelwände, Korbbogengewölbe, Holzsprossenfenster mit Schall- u. Wärmeisolierung usw...
- Dachboden ausbaufähig
Optional kann der Kauf einer zusätzlichen Pensionswirtschaft (5 Pensionszimmer mit jeweilig separaten kleinen Bädern, ca. 400 Meter entfernt, zu einem Paketpreis angeboten werden.
Besichtigungstermine Terminierungen zur Besichtigung und Begehungen des Objektes erfolgen ausschließlich über die Maklerin Frau Stephanie Sabrowski Tel. 0157-35380847.
Besichtigungstermine können an Werktagen sowie Wochenenden erfolgen und werden individuell abgestimmt.
Es handelt sich weder um einen Notverkauf, noch unterliegt der Eigentümer zeitlichen Zwängen. Diesbezüglich werden lediglich seriöse Anfragen, mit Angabe der vollständigen Anschrift und Telefonnummer berücksichtigt.
- 2022 Dachneueindeckung
- Gasthof mit 2 Pensionszimmer (optional kann eine weitere separate Pensionswirtschaft mit 5 Gästezimmern/Bädern erworben werden)
- moderne Einliegerwohnung mit Balkon, 4Raum mit Einbauküche, Bad u. Gäste-WC
- Gaststube (brauereifrei) mit Abluft, Tresen, Schanksäule, 38 m², 45 Personen
- Vereinsraum mit Abluft, 26 m², 20-25 Personen
- Weinkeller (Gewölbekeller), 30 Personen, beheizbar
- Festscheune, Lehmbackofen u. offener Grill, Deckenheizstrahler, Theke mit Durchlaufkühler, 100 m², 35 Personen
- Sonnenterrasse, 44 m², 20-25 Personen
- Grünfläche / Gartenbereich
- Pkw-Stellplätze außen
- Behindertenrampe
- Herren- u. Damentoilette für d. Innenbereich, sowie Personal WC
- sanierte Stallung mit WC's für den Außenbereich
- Sammelheizung Gas mit Solarunterstützung (5 Module) u. 2 große Warmwasserbehälter
- Fettabscheider
- Bierkühler mit Begleitkühlfunktion, Gasherd, Küchentechnik u. Geschirr
- Mobiliar, teilweise hochwertige Eichentische- u. Bänke
- Medienversorgung anliegend
- dekoratives Fachwerk mit freiliegenden Eichenbalken, Lehmziegelwände, Korbbogengewölbe, Holzsprossenfenster mit Schall- u. Wärmeisolierung usw...
- Dachboden ausbaufähig
Optional kann der Kauf einer zusätzlichen Pensionswirtschaft (5 Pensionszimmer mit jeweilig separaten kleinen Bädern, ca. 400 Meter entfernt, zu einem Paketpreis angeboten werden.
Besichtigungstermine Terminierungen zur Besichtigung und Begehungen des Objektes erfolgen ausschließlich über die Maklerin Frau Stephanie Sabrowski Tel. 0157-35380847.
Besichtigungstermine können an Werktagen sowie Wochenenden erfolgen und werden individuell abgestimmt.
Es handelt sich weder um einen Notverkauf, noch unterliegt der Eigentümer zeitlichen Zwängen. Diesbezüglich werden lediglich seriöse Anfragen, mit Angabe der vollständigen Anschrift und Telefonnummer berücksichtigt.
Weitere Services
Lust auf eine Besichtigung?
Eine Frage zur Immobilie?
Über den Anbieter
Immobilienmaklerin Stephanie SabrowskiMaklerbüro
Bernburger Str. 10, 39240 Calbe (Saale)
Partnerschaft

Frau Stephanie SabrowskiDein Kontakt
Weitere Unterlagen
Online-ID: 2ksan5w

Immobilienmaklerin Stephanie Sabrowski
5/5Bewertung: 5 von 5 Sternen
Wie zufrieden bist du mit dieser Seite (nicht mit der Immobilie selbst)?