

Temme Immobilien GmbH & Co. KG
Frau Nicole Müller
+49 ···
Nr. anzeigenPreise & Kosten
Kaution
3 Bruttomonatsmieten / Bankbürgschaft
Provision für Mieter
provisionsfrei
Warum sehe ich diese Anzeige? – Du siehst diese Anzeige basierend auf Ihrer Navigation auf unserer Website und den Suchkriterien, die du verwendet hast.
Lage
Das Gebäude befindet sich in einer attraktiven Lage mit hervorragender Verkehrsanbindung und bietet zahlreiche Annehmlichkeiten. Die hervorragende Lage bietet eine optimale Anbindung an die Autobahnen A3, A6 und A9, wodurch der Flughafen Nürnberg sowie weitere regionale Wirtschaftszentren schnell erreichbar sind. Auch der...
Büro-/Praxisfläche
Kategorie
Bürofläche
Bezug
nach Absprache
Details
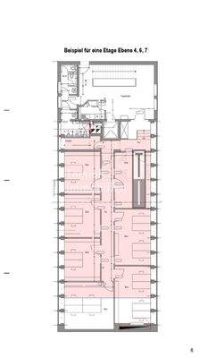
Objektbeschreibung
GRÖSSE
ca. 200 m² EG
ca. 200 m² 1. OG
ca. 200 m² 2. OG
ca. 200 m² 3. OG
ca. 200 m² 4. OG
ca. 1.000 m² Gesamt
MIETPREIS
ab 12,00 EUR/m² zzgl. 3,60 EUR/m² NK/HK zzgl. MwSt. und vorbehaltlich einer Überprüfung der Mietersonderwünsche, deren Kosten und Verteilung.
BEZUG
nach...
Ausstattung
- barrierefrei
- Alarmanlage und Zugangskontrollsystem
- Personenaufzug
- Glasfaseranbindung
- helle Flächen dank großzügiger Fenster
- LED-Deckenbeleuchtung
- IT-Verkabelung über Kabelkanäle an den Fensterseiten
- eine Teeküche auf jeder Etage
- Catering-Küche im EG
- Bodenbelag: größtenteils...
Weitere Informationen
Sonstiges
MIETERPROVISION*
Provisionsfrei!
Voraussetzung ist eine Mietvertragslaufzeit von 5 Jahren.
Bei kürzeren Mietvertragslaufzeiten wird der Mieter an der Provision beteiligt.
MIETEROPTIONSRECHT
Kumulativ kommt zu den vorstehend genannten jeweiligen Mieterprovisionen eine zusätzliche Mieterprovision...
Dokumente
Anbieter der Immobilie
Temme Immobilien GmbH & Co. KG
Am Tullnaupark 4, 90402 Nürnberg

Online-ID: 2ksbg5j
Referenznummer: P132/G1
Finde Angebote wie dieses
Hier geht es zu unserem Impressum, den Allgemeinen Geschäftsbedingungen, den Hinweisen zum Datenschutz und nutzungsbasierter Online-Werbung.