
Krams Immobilien GmbH
Frau Angelika Ade
004 ···
Nr. anzeigenPreise & Kosten
Provision für Käufer
3,57 % Käuferprovision inkl. Mehrwertsteuer.
Lage
Eingebettet ins Ermstal, zwischen grünen Streuobstwiesen und romantischen Wäldern stellt die sympathische Gemeinde an der Erms den idealen Ort zum Wohnen dar.
Neben der hervorragenden Infrastruktur zeichnet sich Dettingen durch ein starkes Gemeinschaftsgefühl der Bürger sowie die Nähe zur Natur aus.
Obwohl das...
Das Haus
Kategorie
Mehrfamilienhaus
Baujahr
1973
Bezug
nach Absprache
Energie & Heizung
Warum sehe ich diese Anzeige? – Du siehst diese Anzeige basierend auf Ihrer Navigation auf unserer Website und den Suchkriterien, die du verwendet hast.
Energieausweistyp
Bedarfsausweis
Gebäudetyp
Wohngebäude
Baujahr laut Energieausweis
1973
Wesentliche Energieträger
OEL
Gültigkeit
bis 18.03.2035
Effizienzklasse
G
Endenergiebedarf
231,00 kWh/(m²·a)
Weitere Energiedaten
Energieträger
Öl
Heizungsart
Zentralheizung
Details
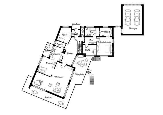
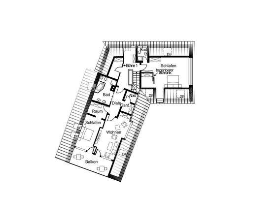
Objektbeschreibung
Hohe Ansprüche sind hier zuhause:
Lassen Sie sich begeistern von diesem gepflegten Haus im Villencharakter.
Die prädestinierte naturnahe Aussichtslage über das Ermstal bietet eine außergewöhnliche Wohnatmosphäre. Zudem verleiht der parkähnliche Garten mit altem Baumbestand dem Anwesen besonderen Charme. Sichtgeschützt...
Ausstattung
- Bodenbeläge: Marmor, Steinböden, Fliesen, Parkett, teilweise Teppichboden im DG
- großformatige Fenster in Wohnräumen
- Sauna mit Dusche / WC im Untergeschoss
- Schwimmbecken im Rohbau - derzeit mit Holzboden überbaut für die Büronutzung im
Gartengeschoss
- 3 Tageslichtbäder, 1 Saunabad
-...
Preisinformation
3 Stellplätze
2 Garagenstellplätze
Weitere Informationen
Sonstiges
Das Haus ist nach Absprache beziehbar.
Stichworte
Nutzfläche: 119,66 m², Anzahl der Badezimmer: 3, Anzahl Terrassen: 1, Anzahl der Wohneinheiten: 2, 3 Etagen
Anbieter der Immobilie
Krams Immobilien GmbH
Kaiserpassage 9, 72764 Reutlingen
Online-ID: 2kscf5w
Referenznummer: 7872
Finde Angebote wie dieses
Hier geht es zu unserem Impressum, den Allgemeinen Geschäftsbedingungen, den Hinweisen zum Datenschutz und nutzungsbasierter Online-Werbung.