

Max Netter GmbH
Frau Simone Hundt
084 ···
Nr. anzeigenPreise & Kosten
Provision für Käufer
provisionsfrei
Lage
Moderner Wohnkomfort inmitten des idyllischen Altmühltals!Unsere exklusiven Eigentumswohnungen im Bieswanger Weg bieten Ihnen ein Zuhause in einerder schönsten Regionen Bayerns.
Die Wohnung
Kategorie
Apartment
Bezug
sofort
Wohnanlage
Energie & Heizung
Warum sehe ich diese Anzeige? – Du siehst diese Anzeige basierend auf Ihrer Navigation auf unserer Website und den Suchkriterien, die du verwendet hast.
Energieausweistyp
Bedarfsausweis
Gebäudetyp
Wohngebäude
Baujahr laut Energieausweis
2024
Effizienzklasse
A+
Endenergiebedarf
5,00 kWh/(m²·a)
Weitere Energiedaten
Energieträger
Elektro
Details
Objektbeschreibung
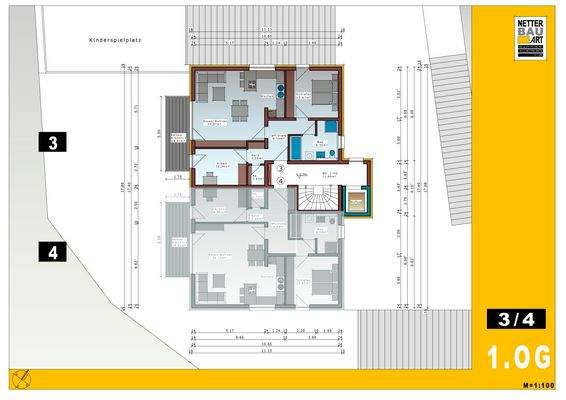
In Solnhofen haben wir für Sie ein Mehrfamilienhaus mit sechs Eigentumswohnungen realisiert.Diese wurden mit 2 und 3 Zimmern mit einer Wohnfläche von ca. 70 m² bis ca. 91 m² erstellt.
Ausstattung
Die Wohnungen sind mit Flur und Abstellraum ausgestattet. Die Badezimmer mit Tageslicht bieten Badewanne und bodengleiche Dusche. Ein offener Küchen-Wohn-Essbereich mit Terrasse oder Balkon ist in jeder Wohnung festgelegt. Ein Schlaf- sowie Arbeitszimmer sind in allen Wohnungen beide vorhanden.Jede Wohnung erhält einen...
Weitere Informationen
Sonstiges
Wir greifen bei unseren Bauprojekten möglichst auf Produkte zurück, die durch das BayWa BauGesund-Siegel als emissionsarm gekennzeichnet sind und damit positiv zur Wohngesundheit beitragen können. Zusätzlich sind unsere Mitarbeiter durch BauGesund-Experten in der wohngesunden Verarbeitung der Baustoffe geschult...
Dokumente
Anbieter der Immobilie

Online-ID: 2ksft5z
Referenznummer: 1662022 _-_ 166-003
Finde Angebote wie dieses
Hier geht es zu unserem Impressum, den Allgemeinen Geschäftsbedingungen, den Hinweisen zum Datenschutz und nutzungsbasierter Online-Werbung.