
Windisch Immobilien ivd
Frau Anke Windisch-Zaremba
044 ···
Nr. anzeigenPreise & Kosten
Provision für Käufer
3,57 % Käuferprovision inkl. der gesetzlichen MwSt. vom notariell beurkundeten Kaufpreis, verdient und fällig mit Beurkundung des notariellen Kaufvertrages.
Lage
Das Mehrfamilienhaus befindet sich in der Nähe zur Hunte, zentral gelegen und trotzdem im Grünen.
Restaurants, Ärzte, Einkaufsmöglichkeiten, Bushaltestelle, alles fußläufig erreichbar. Auch eine Schule befindet sich im Stadtteil Alt-Osternburg.
Die Oldenburger City ist durch die innenstadtnahe Lage bequem zu...
Das Renditeobjekt
Baujahr
1925
Frei ab
vermietet
Energie & Heizung
Warum sehe ich diese Anzeige? – Du siehst diese Anzeige basierend auf Ihrer Navigation auf unserer Website und den Suchkriterien, die du verwendet hast.
Energieausweistyp
Verbrauchsausweis
Gebäudetyp
Wohngebäude
Baujahr laut Energieausweis
1925
Wesentliche Energieträger
Gas
Gültigkeit
22.05.2025 bis 21.05.2035
Effizienzklasse
B
Endenergieverbrauch
71,12 kWh/(m²·a)
Weitere Energiedaten
Energieträger
Gas
Heizungsart
Etagenheizung
Details
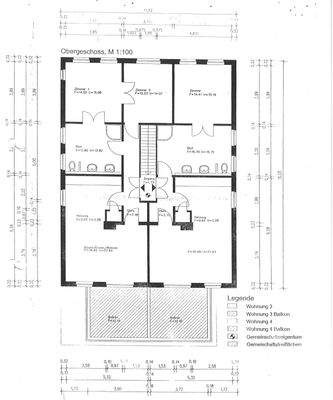
Objektbeschreibung
Angeboten wird dieses interessante Mehrfamilienhaus mit gesamt 6 vermieteten Wohneinheiten.
Es befinden sich jeweils 2 Wohnungen auf 3 Etagen. Die historische Fassade passt sich sehr gut dem Straßenbild an.
Die EG-Wohnungen haben je eine eigene Terrasse und die OG Wohnungen einen Balkon.
Für die...
Weitere Informationen
Sonstiges
Dieses Exposé wurde nach den Angaben und Unterlagen der Verkäufer erstellt. Für die Richtigkeit und Vollständigkeit wird trotz sorgfältiger Bearbeitung keine Gewähr übernommen.
Die vom Käufer zu zahlende Maklercourtage beträgt 3,57 % inkl. gesetzl. Mehrwertsteuer und wird nach Abschluss eines notariellen...
Anbieter der Immobilie

Windisch Immobilien ivd
Donnerschweer Str. 127, 26123 Oldenburg
Online-ID: 2ksgg5a
Referenznummer: VK-OL_AO
Finde Angebote wie dieses
Hier geht es zu unserem Impressum, den Allgemeinen Geschäftsbedingungen, den Hinweisen zum Datenschutz und nutzungsbasierter Online-Werbung.