
Evernest GmbH
Richard Most
+49 ···
Nr. anzeigenPreise & Kosten
Provision für Käufer
3.57 inkl. MwSt.
Bei Abschluss eines notariellen Kaufvertrages ist eine Käuferprovision vom Käufer in Höhe von 3.57 % inkl. MwSt. aus dem Kaufpreis fällig.
Lage
Die Gemeinde Diensdorf-Radlow, ein verstecktes Juwel nur fünf Kilometer südlich des renommierten Kurortes Bad Saarow ist eingebettet im malerischen Landkreis Oder-Spree. Die idyllische Ortschaft verzaubert mit ihrer naturnahen Lage am sanften Ostufer des glitzernden Scharmützelsees, dem beliebtesten See Deutschlands...
Das Haus
Kategorie
Einfamilienhaus
Baujahr
2022
Energie & Heizung
Warum sehe ich diese Anzeige? – Du siehst diese Anzeige basierend auf Ihrer Navigation auf unserer Website und den Suchkriterien, die du verwendet hast.
Energieausweistyp
Bedarfsausweis
Gebäudetyp
Wohngebäude
Effizienzklasse
A+
Endenergiebedarf
14,00 kWh/(m²·a)
Weitere Energiedaten
Energieträger
Elektro
Details
Objektbeschreibung
Willkommen in Ihrem neuen Traumhaus am Scharmützelsee!
Dieses moderne KfW 40 plus Haus ist ein energieeffizientes Gebäude, welches mit einer zusätzlichen Anlage zur Stromerzeugung aus erneuerbaren Energien und einem Batteriespeicher ausgestattet ist und so einen besonders hohen Energiestandard erreicht.
Der Neubau...
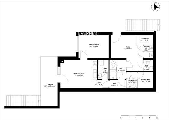
Ausstattung
- Leichte Hanglage mit Blick auf den Scharmützelsee
- Neubau eines Einfamilienhauses im KfW 40 Plus Standard
- Energieeffizienz-Haus aus dem Jahre 2022
- Erstbezug
- 212 Quadratmeter Wohnfläche
- 7 Zimmer
- 3 Badezimmer
- Gäste-WC
- Großer Wohn/Kochbereich
- Terrasse mit Garten
- Vollausgebautes...
Weitere Informationen
Stichworte
Stellplatz vorhanden, Anzahl der Schlafzimmer: 5, Anzahl der Badezimmer: 3, Anzahl der separaten WCs: 1, Anzahl Terrassen: 1, Gartenfläche: 750,00 m², 2 Etagen
Anbieter der Immobilie
Online-ID: 2kshn5g
Referenznummer: L-HN47RQ9
Finde Angebote wie dieses
Hier geht es zu unserem Impressum, den Allgemeinen Geschäftsbedingungen, den Hinweisen zum Datenschutz und nutzungsbasierter Online-Werbung.