

Rutz Immobilien GmbH
Herr Cedric Rutz
042 ···
Nr. anzeigenPreise & Kosten
Provision für Käufer
5,95% (inkl. 19% MwSt.) Maklerprovision (Käuferprovision) vom beurkundeten Kaufpreis
Lage
Das Wohn- und Geschäftshaus befindet sich auf einem Eckgrundstück entlang der Mühlenstr. im Delmenhorster Stadtteil Dwoberg/Ströhen, welcher sich in unmittelbarer Nähe zum Stadtzentrum befindet. Das Zentrum und den Delmenhorster Bahnhof/ZOB ist lediglich 1.300m entfernt und ist somit in ca. 15 Minuten zu Fuß zu erreichen. Auf...
Das Haus
Baujahr
1967
Derzeitige Nutzung
vermietet
Energie & Heizung
Warum sehe ich diese Anzeige? – Du siehst diese Anzeige basierend auf Ihrer Navigation auf unserer Website und den Suchkriterien, die du verwendet hast.
Energieausweistyp
Verbrauchsausweis
Gebäudetyp
Wohngebäude
Baujahr laut Energieausweis
1967
Wesentliche Energieträger
GAS
Gültigkeit
bis 28.02.2029
Effizienzklasse
E
Endenergieverbrauch
142,90 kWh/(m²·a)
Weitere Energiedaten
Energieträger
Gas
Details
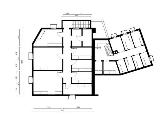
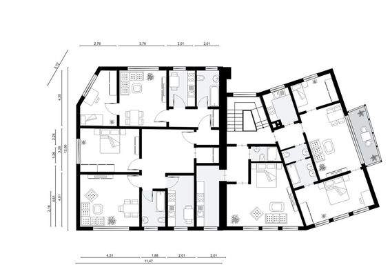
Objektbeschreibung
Das im Jahr 1967 errichtete Wohn-und Geschäftshaus, befindet sich auf dem 879m² großen Grundstück und wurde im Jahr 1983 mit einem Anbau erweitert. Die insgesamt vermietete Fläche beträgt ca. 677m² und unterteilt sich in 4 Gewerbeflächen, welche sich im Erdgeschoss mit der Front zur viel frequenzierten Straße befinden, sowie...
Ausstattung
+ 9 Wohnungen (kein WEG)
+ 4 Gewerbeeinheiten
+ 4 Garagen & ca. 8 Außenstellplätze
+ Vollkeller und Kriechkeller
+ 2 Gas-Thermen
+ Durchlauferhitzer
+ Kunststofffenster
+ Holzrahmenfenster zur rechten Hausseite
+ gute Verkehrsanbindung
+ TOP Sichtbarkeit der Gewerbeeinheiten
+ Einbauküchen...
Preisinformation
8 Stellplätze
4 Garagenstellplätze
Soll-Mieteinnahmen pro Jahr: 65.316,00 EUR
Ist-Mieteinnahmen pro Jahr: 65.316,00 EUR
Weitere Informationen
Sonstiges
Finanzen und wichtige Informationen:
Wohnfläche (Gesamt): 471,06m² / 9 Wohnungen
Nutzfläche (Gewerbe) 208,92m² / 4 Gewerbeeinheiten
Gesamtfläche: 677,43m²
Gesamte monatliche Mieteinnahme: 5.443,06€ (Netto)
Jahresmieteinnahme: 65.316,72€ (Netto)
Durchschnittlicher...
Anbieter der Immobilie
Rutz Immobilien GmbH
Schildstraße 8, 27753 Delmenhorst

Online-ID: 2ksul5d
Referenznummer: Ref.-Nr. 655
Finde Angebote wie dieses
Hier geht es zu unserem Impressum, den Allgemeinen Geschäftsbedingungen, den Hinweisen zum Datenschutz und nutzungsbasierter Online-Werbung.