
Aigner Immobilien GmbH
Herr Stephan Michl
+49 ···
Nr. anzeigenPreise & Kosten
Provision für Käufer
provisionsfrei
Lage
Aubing-Lochhausen, im Westen Münchens gelegen, ist ein attraktiver Wohnstandort für Familien.
Bekannt für seine ruhige und grüne Umgebung, bietet der Stadtteil zahlreiche Parks und Naherholungsgebiete wie den Langwieder See und den Lußsee, die ideal für Freizeitaktivitäten und Ausflüge mit der Familie sind.
Aubing...
Das Haus
Kategorie
Reihenendhaus
Baujahr
2026
Bezug
nach Vereinbarung
Energie & Heizung
Warum sehe ich diese Anzeige? – Du siehst diese Anzeige basierend auf Ihrer Navigation auf unserer Website und den Suchkriterien, die du verwendet hast.
Weitere Energiedaten
Heizungsart
Zentralheizung
Details
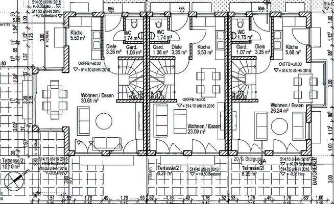
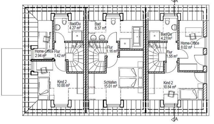
Objektbeschreibung
Willkommen in Ihrem neuen Zuhause - zwei Dreispänner, die speziell für Familien entworfen wurden, verbinden modernen Komfort mit stilvoller Architektur.
Jedes Haus besticht durch eine durchdachte Raumaufteilung, die den Bedürfnissen einer Familie gerecht wird. Die lichtdurchfluteten Räume bieten ein behagliches...
Ausstattung
Zwei moderne Dreispänner, ideal für Familien
Durchdachte Grundrisse mit familienfreundlicher Raumaufteilung
Großzügiger Wohn- und Essbereich mit offener Küche
Bodentiefe Fenster für viel Tageslicht und freundliche Wohnatmosphäre
Zugang zur großzügigen Terrasse vom Wohnbereich...
Weitere Informationen
Sonstiges
Heizungsart: Wärmepumpe
Baujahr: 2026
Mehr Bilder und Infos hier - https://aigner-immobilien.de/objekt/ID-42287/
Kostenlose Online-Bewertung - https://aigner-immobilien.de/wertermittlung-online-muenchen/
Zu unseren Marktberichten - https://aigner-immobilien.de/marktinformationen/
-...
Anbieter der Immobilie
Aigner Immobilien GmbH
Ruffinistraße 26, 80637 München
Online-ID: 2ksz65y
Referenznummer: 42287
Finde Angebote wie dieses
Hier geht es zu unserem Impressum, den Allgemeinen Geschäftsbedingungen, den Hinweisen zum Datenschutz und nutzungsbasierter Online-Werbung.