

morespace real estate gmbh
Herr Tom Friemel
004 ···
Nr. anzeigenPreise & Kosten
Provision für Mieter
Bitte beachte, das Angebot kann bei Vertragsabschluss die Zahlung einer Provision beinhalten. Weitere Informationen erhältst Du vom Anbieter.
Warum sehe ich diese Anzeige? – Du siehst diese Anzeige basierend auf Ihrer Navigation auf unserer Website und den Suchkriterien, die du verwendet hast.
Lage
Die Frankfurter Allee bildet die südliche Fortsetzung der vom Alexanderplatz ausgehenden Karl-Marx-Allee. Sie beginnt am S-Bahnknotenpunkt Frankfurter Tor und verläuft geradlinig ostwärts durch die Bezirke Friedrichshain-Kreuzberg und Lichtenberg und mündet letztendlich in die über örtlich bedeutsamen Bundesstraßen 1 sowie 5...
Büro-/Praxisfläche
Kategorie
Bürofläche
Geschoss
4. Geschoss
Details
Objektbeschreibung
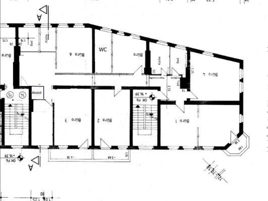
Zur Vermietung steht eine Altbauetage im Herzen von Berlin-Lichtenberg. Die Fläche im 4.Obergeschoss verfügt über 8 Räume sowie Sanitärbereiche und separater Küche.Die Fläche bietet sich sowohl als Büro als auch für eine Praxisnutzung an.
For rent is an old building floor in the heart of Berlin-Lichtenberg. The space...
Ausstattung
Urban
Flexibel
Infrastruktur
Isofenster
3 Balkone
Netzwerk
Tresor
Einbauküche
Teppich
3 Toiletten
Kein Aufzug
Urban
Flexible
Infrastructure
Insulated windows
3 balconies
Network
Safe
Fitted kitchen
Carpet
3 toilets
No elevator
Weitere Informationen
Sonstiges
- Sofort verfügbar
- Wertsicherungsklausel
- Grundlaufzeit: 4 Jahre
- 2 x 3 Jahre Option mit Neuverhandlung NKM
- Available immediately
- Value protection clause
- Basic term: 4 years
- 2 x 3 years option with renegotiation NKM
Stichworte
Anzahl Balkone und Terrassen: 3
Anbieter der Immobilie

Online-ID: 2kt2s52
Referenznummer: MS4482
Finde Angebote wie dieses
Hier geht es zu unserem Impressum, den Allgemeinen Geschäftsbedingungen, den Hinweisen zum Datenschutz und nutzungsbasierter Online-Werbung.