

Nudelmann & Friends Immobilien GmbH
Frau Andrea Riley
+49 ···
Nr. anzeigenPreise & Kosten
Kaution
Drei Bruttowarmmieten
Provision für Mieter
3,57 Nettokaltmieten inkl. 19% MwSt.
Warum sehe ich diese Anzeige? – Du siehst diese Anzeige basierend auf Ihrer Navigation auf unserer Website und den Suchkriterien, die du verwendet hast.
Lage
1A-Lage
Die Gewerbefläche liegt im hippen und beliebten "Simon-Dach-Kiez", gelegen zwischen der Warschauerstraße und Ostkreuz. Der Boxhagenerplatz ist in direkter Nachbarschaft, sodass Sie sich genau im Geschehen befinden. Alles, was das Leben so spannend macht, ist fußläufig erreichbar: viele Bars, Restaurants...
Gastronomie/Hotel
Kategorie
Restaurant
Bezug
sofort
Energie & Heizung
Warum sehe ich diese Anzeige? – Du siehst diese Anzeige basierend auf Ihrer Navigation auf unserer Website und den Suchkriterien, die du verwendet hast.
Weitere Energiedaten
Heizungsart
Zentralheizung
Details
Objektbeschreibung
Erkunden Sie diese großzügige Gewerbefläche im beliebten "Simon-Dach-Kiez", strategisch gelegen zwischen der Warschauerstraße und dem Ostkreuz.
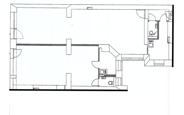
Die Gewerbefläche umfasst etwa 135 m² und bietet somit ausreichend Platz für Ihre Ideen und verschiedenartigsten Aktivitäten. Durch die großzügigen Räume, die nach Ihren...
Ausstattung
Shop im Shop Modell möglich
- Großzügige Fläche
- Räume veränderbar
- Großzügige Schaufenster
- Fliesenboden
- Zwei getrennte WC
- Abstellraum
Weitere Informationen
Stichworte
Serviceleistungen: Hausmeister
Sonstiges: Getrennte Damen- und Herren-WCs, frei werdend
Anbieter der Immobilie
Nudelmann & Friends Immobilien GmbH
Kurfürstendamm 133, 10711 Berlin

Online-ID: 2kt5q5t
Referenznummer: 10245BOX28GASTRO
Finde Angebote wie dieses
Hier geht es zu unserem Impressum, den Allgemeinen Geschäftsbedingungen, den Hinweisen zum Datenschutz und nutzungsbasierter Online-Werbung.