

SC Immobilien GmbH
Frau Ceylan Cete
043 ···
Nr. anzeigenPreise & Kosten
Provision für Käufer
4,76% inkl. Mwst.
Lage
Das geplante Wohn- und Geschäftshaus befindet sich mittig zwischen dem Hauptbahnhof Neumünster und der Innenstadt Neumünster. Jeweils 150 m vom Hauptbahnhof NMS und 150 m von der Innenstadt.
Die Immobilie
Zu diesem Angebot wurden vom Anbieter keine weiteren Daten hinterlegt. Für weitere Informationen bitte den Anbieter kontaktieren.
Nach Informationen fragenDetails
Objektbeschreibung
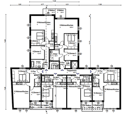
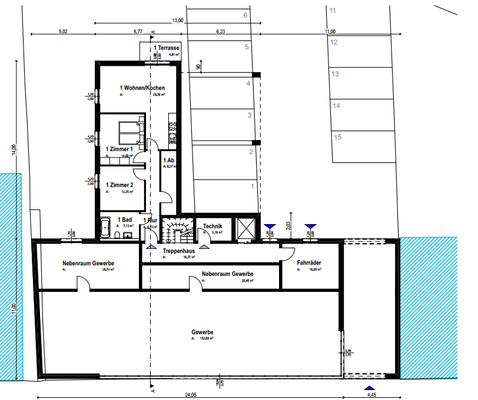
Das Wohn- und Geschäftshaus Neubauprojekt umfasst 19 Wohneinheiten, jeweils 2-3 Zimmerwohnungen und einer Gewerbeeinheit.
Auf dem 1.020,00 m² großen Grundstück, es ist vollständig Projektiert und Baugenehmigt und bereit zum Umsetzen.
- 19 Zimmerwohnungen und ca. 1.423 m² Wohnfläche
- 1 Gewerbeeinheit ca. 202...
Anbieter der Immobilie
SC Immobilien GmbH
Hamburger Str. 17, 24568 Kaltenkirchen

Online-ID: 2kt7d5s
Finde Angebote wie dieses
Hier geht es zu unserem Impressum, den Allgemeinen Geschäftsbedingungen, den Hinweisen zum Datenschutz und nutzungsbasierter Online-Werbung.