

Sparkasse zu Lübeck AG Immobiliencenter
Herr Torsten Gardner
045 ···
Nr. anzeigenPreise & Kosten
Provision für Käufer
provisionsfrei
Lage
Der begehrte Süden Lübecks
St. Jürgen ist eines der beliebtesten Wohngebiete Lübecks. Der Stadtteil liegt im Süden Lübecks. Im Westen wird St. Jürgen durch die idyllische Wakenitz begrenzt, im Osten durchfließt der Elbe-Lübeck-Kanal den Stadtteil. Beide Gewässer sind mit ihren schönen Uferwegen zum Wandern, Joggen...
Die Wohnung
Wohnungslage
Erdgeschoss
Bezug
01.04.2026
Wohnanlage
Energie & Heizung
Warum sehe ich diese Anzeige? – Du siehst diese Anzeige basierend auf Ihrer Navigation auf unserer Website und den Suchkriterien, die du verwendet hast.
Energieausweis: für diesen Gebäudetyp nicht notwendig
Weitere Energiedaten
Energieträger
Elektro, Solar
Haustyp
KfW 40
Heizungsart
Fußbodenheizung, Luft-/Wasser-Wärmepumpe
Details
Objektbeschreibung
Kurzbeschreibung
Nur noch 18 Wohnungen frei verfügbar !! Mit KfW 40 Standard, Balkon oder Terrasse, Fahrradgarage, Kinderspielplatz, Fahrstuhl und Kellerräumen
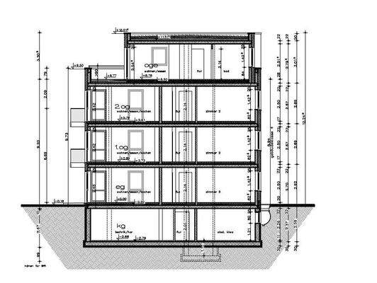
Objekt
In toller Lage von St. Jürgen entstehen insgesamt 31 Eigentumswohnungen verteilt auf 4 Häuser.
Die Häuser sind teilweise schon fertiggestellt...
Ausstattung
- Massivbauweise mit KfW 40- Standard
- Erd -oder Obergeschosswohnungen
- Penthousewohnung als Staffelgeschoss
- Staffelgeschoss mit Dachterrasse
- Fahrstuhl
- Dreifachverglasung
- Fußbodenheizung
- Hochwertige Sanitärobjekte
- Individuelle Bodenbeläge, Fliesen und...
Preisinformation
1 Stellplatz, Kaufpreis: 15.000,00 EUR
Weitere Informationen
Provisionshinweis
prov.frei
Diese Immobilie wird angeboten,dass kein Maklervertrag mit dem Kaufinteressenten abgeschlossen wird.
Die Vergütung bei der Vermittlung dieser Immobilie trägt ausschließlich der Verkäufer.Der Makler ist der alleinige
Interessenvertreter des Verkäufers und vereinbart mit dem...
Dokumente
Anbieter der Immobilie
Sparkasse zu Lübeck AG Immobiliencenter
Breite Str. 18-28, 23552 Lübeck

Online-ID: 2ktah5u
Referenznummer: 103-24-004211-9
Finde Angebote wie dieses
Hier geht es zu unserem Impressum, den Allgemeinen Geschäftsbedingungen, den Hinweisen zum Datenschutz und nutzungsbasierter Online-Werbung.