
Riverside Real Estate GmbH
Herr Karim El Yazidi
004 ···
Nr. anzeigenPreise & Kosten
Provision für Käufer
3,57 % inkl. 19 % MwSt.
Lage
Die Gemeinde Dielmissen liegt im nordöstlichen Teil des Landkreises Holzminden in Niedersachsen und gehört zur Samtgemeinde Eschershausen-Stadtoldendorf. Eingebettet in die abwechslungsreiche Landschaft des Weserberglands bietet der Ort eine ruhige, ländliche Atmosphäre bei gleichzeitig guter Erschließung. Die...
Das Haus
Kategorie
Einfamilienhaus
Baujahr
1800
Energie & Heizung
Warum sehe ich diese Anzeige? – Du siehst diese Anzeige basierend auf Ihrer Navigation auf unserer Website und den Suchkriterien, die du verwendet hast.
Energieausweistyp
Bedarfsausweis
Gebäudetyp
Wohngebäude
Baujahr laut Energieausweis
1800
Gültigkeit
bis 21.03.2035
Effizienzklasse
H
Endenergiebedarf
397,50 kWh/(m²·a)
Weitere Energiedaten
Haustyp
Massivhaus
Details
Objektbeschreibung
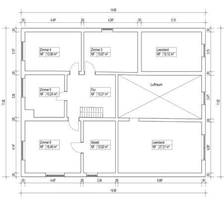
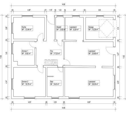
In ruhiger Wohnlage von Dielmissen, befindet sich dieses freistehende Wohnhaus. Das Gebäude wurde ca. im Jahr 1800 errichtet. Es bietet auf zwei Ebenen eine großzügige Wohnfläche von ca. 152 m² sowie eine Nutzfläche von insgesamt ca. 268 m².
Im Erdgeschoss verteilen sich auf rund 72 m² Wohnfläche zwei Zimmer, eine...
Ausstattung
- Baujahr ca. 1800
- Wohnfläche: ca. 152 m²
- Wohn- und Nutzfläche gesamt: ca. 268 m²
- Grundstücksgröße ca. 697 m²
- Garage
- Küche im Erdgeschoss veraltet
- Bad im Erdgeschoss, Sanitärinstallation veraltet
- Stark sanierungsbedürftiger Zustand
- 2 Etagen...
Weitere Informationen
Sonstiges
Die Riverside Real Estate GmbH bietet Immobilien aller Assetklassen zum Verkauf an, mit Standorten in Hameln-Pyrmont, Hannover, Bremen und Umgebung.
Wenn Sie mehr über uns erfahren möchten, besuchen Sie gerne unsere Homepage unter WWW.RIVERSIDE-ESTATE.DE. Dort finden Sie ausführliche Informationen über...
Anbieter der Immobilie
Riverside Real Estate GmbH
Erichstr. 16, 31785 Hameln
Online-ID: 2kte65f
Referenznummer: 2025-407
Finde Angebote wie dieses
Hier geht es zu unserem Impressum, den Allgemeinen Geschäftsbedingungen, den Hinweisen zum Datenschutz und nutzungsbasierter Online-Werbung.