
s REAL Steiermark Realservice für steir. Sparkassen Realitätenvermittlungs GmbH
Herr Patrick Zaunfuchs
+43 ···
Nr. anzeigenPreise & Kosten
Provision für Käufer
3% des Kaufpreises zzgl. 20% USt.
Lage
8265 Großsteinbach
Das Haus
Baujahr
1912
Energie & Heizung
Warum sehe ich diese Anzeige? – Du siehst diese Anzeige basierend auf Ihrer Navigation auf unserer Website und den Suchkriterien, die du verwendet hast.
Heizwärmebedarf (HWB)
242,19 kWh/(m²·a)
Gesamtenergieeffizienz (fGEE)
2,60
Weitere Energiedaten
Haustyp
Massivhaus
Energieträger
Holz
Heizungsart
Ofen, Zentralheizung
Details
Objektbeschreibung
Dieser charmante Altbau befindet sich im Herzen eines kleinen Dorfes und überzeugt durch ein großzügiges Raumangebot, vielseitige Nutzungsmöglichkeiten und ein weitläufiges, ebenes Grundstück mit 1.227 m² Fläche.
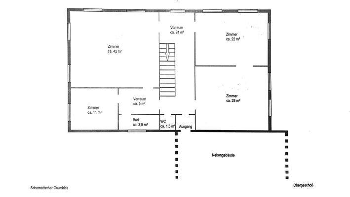
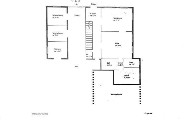
Die Wohnfläche umfasst etwa 240 m², ist auf zwei Ebenen aufgeteilt und bietet insgesamt sieben...
Weitere Informationen
Stichworte
Stellplatz vorhanden, Nutzfläche: 300,00 m², Anzahl der Badezimmer: 2, Anzahl der separaten WCs: 3, Kellerfläche: 35,00 m², Bundesland: Steiermark, 2 Etagen
Dokumente
Anbieter der Immobilie

s REAL Steiermark Realservice für steir. Sparkassen Realitätenvermittlungs GmbH
Sparkassenplatz 4 (Zentrale), 8010 GRAZ
Online-ID: 2ktgb5w
Referenznummer: OBGC202507111150053551c14d35c6b
Finde Angebote wie dieses
Günstige Immobilienfinanzierung einfach online berechnen
Persönliches Angebot berechnenWarum sehe ich diese Werbung? – Du siehst diese Werbung basierend auf Deiner Navigation auf unserer Website und der von Dir verwendeten Suchkriterien.
Diese Werbung wird bezahlt von durchblicker
Werbung melden
Hier geht es zu unserem Impressum, den Allgemeinen Geschäftsbedingungen, den Hinweisen zum Datenschutz und nutzungsbasierter Online-Werbung.