

Sprus Design GmbH
Frau Susanne Sprus
086 ···
Nr. anzeigenPreise & Kosten
Provision für Käufer
Die Käuferprovision in Höhe von 1,19 % auf den Kaufpreis einschließlich aktueller, gesetzlicher Mehrwertsteuer ist bei notariellem Vertragsabschluss verdient und fällig. Die Verkäuferprovision ist in gleicher Höhe.
Lage
Willkommen im herrlichen Chiemgau mit all seinen fröhlichen Luftkurorten, Bergen und Seen!
Traunstein, Kreisstadt und der Hauptort des Chiemgaus, liegt etwa 10 km östlich des Chiemsees und 15 km nördlich der Chiemgauer Alpen. Die Stadt wird in ihren östlichen Teilen vom Fluss Traun durchflossen. Im Südosten liegt der...
Die Wohnung
Bezug
sofort
Derzeitige Nutzung
frei
Wohnanlage
Energie & Heizung
Warum sehe ich diese Anzeige? – Du siehst diese Anzeige basierend auf Ihrer Navigation auf unserer Website und den Suchkriterien, die du verwendet hast.
Energieausweistyp
Bedarfsausweis
Gebäudetyp
Nicht-Wohngebäude
Baujahr laut Energieausweis
2009
Wesentliche Energieträger
Holzpellets
Gültigkeit
21.04.2009 bis 21.04.2019
Endenergiebedarf
77,20 kWh/(m²·a)
Weitere Energiedaten
Energieträger
Pellets
Heizungsart
Fußbodenheizung, Zentralheizung
Details
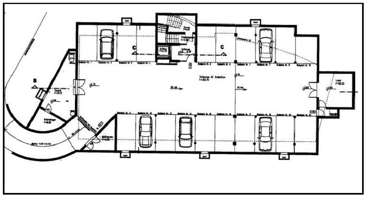
Objektbeschreibung
Objektbeschreibung
In optimal zentraler Lage Traunsteins und in direkter Bahnhofs-/Busnähe im Zentrum gelegen, wurde dieses moderne und durch die Tunnelwölbung sehr ansprechend gestaltete Geschäftshaus in 2010 auf einem 1.564 m² großen Grundstück fertiggestellt.
Die bisherige Nutzung erfolgte durch eine überörtliche...
Weitere Informationen
Besichtigungstermine
Jederzeit gerne nach telefonisch Rücksprache. Wir freuen uns auf Sie.
Stichworte
Sonstiges: ISDN, Analog
Anbieter der Immobilie
Sprus Design GmbH
Mietenkamer Straße 47, 83224 Grassau

Online-ID: 2ktgd59
Finde Angebote wie dieses
Hier geht es zu unserem Impressum, den Allgemeinen Geschäftsbedingungen, den Hinweisen zum Datenschutz und nutzungsbasierter Online-Werbung.