
IMS+ GmbH (Immobilien)
Herr Axel Richter
004 ···
Nr. anzeigenPreise & Kosten
Provision für Käufer
Käufer- und Verkäufercourtage beträgt jeweils 3,57 % (inkl. MwSt. von z.Z. 19%)
Lage
Das Haus befindet sich in einem ruhigen und familienfreundlichen Wohngebiet von Wehr.
Ärzte, Schulen, Einkaufsmöglichkeiten, aber auch Banken und Ämter sind in wenigen Minuten zu Fuß erreichbar. Der Kindergarten Bündtenfeld ist ebenfalls nur einen Steinwurf entfernt. Die Flughäfen Basel und Zürich liegen ca. 30 und 45...
Die Wohnung
Wohnungslage
2. Geschoss (Erdgeschoss)
Bezug
nach Vereinbarung
Wohnanlage
Energie & Heizung
Warum sehe ich diese Anzeige? – Du siehst diese Anzeige basierend auf Ihrer Navigation auf unserer Website und den Suchkriterien, die du verwendet hast.
Weitere Energiedaten
Energieträger
Gas
Heizungsart
Zentralheizung
Details
Objektbeschreibung
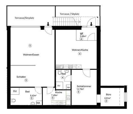
Im ruhigen und ländlichen Stadtteil Enkendorf kann in einem umgebauten Schopf eines ehemaligen Bauernhauses ein spannendes Wohnprojekt mit Entwicklungspotenzial entstehen. Die derzeitige Gewerbefläche im Erdgeschoss eines Fünf-Parteien-Hauses kann in zwei attraktive 2-Zimmer-Wohnungen mit je ca. 50?m² Wohnfläche umgewandelt...
Ausstattung
.Zwei Wohneinheiten à ca. 50?m² Wohnfläche
.2-Zimmer-Wohnungen mit eigenem Eingang
.Jeweils ein Sitzplatz im Freien und ein PKW-Stellplatz
.Erdgeschosslage mit ebenerdigem Zugang
.Ursprungsbaujahr unbekannt, Umbau in den 1990er-Jahren
.Nutzungsvorteil: AfA bei Vermietung mit bis zu 5?% p.a.*
(*steuerliche...
Preisinformation
2 Stellplätze
Weitere Informationen
Sonstiges
Das Exposé wurde nach bestem Wissen und Gewissen nach den Dokumenten und Informationen erstellt, die vom Eigentümer des Grundstücks/ der Immobilie zur Verfügung gestellt wurden.
Stichworte
Stellplatz vorhanden, West-Balkon/Terrasse, Anzahl der Schlafzimmer: 2, Anzahl der Badezimmer: 2, Anzahl Terrassen...
Anbieter der Immobilie
IMS+ GmbH (Immobilien)
Kirchstr. 10, 79664 Wehr
Online-ID: 2ktkj5j
Referenznummer: AR383
Finde Angebote wie dieses
Hier geht es zu unserem Impressum, den Allgemeinen Geschäftsbedingungen, den Hinweisen zum Datenschutz und nutzungsbasierter Online-Werbung.