
Immobilien Nadler
Herr Jochen Nadler
091 ···
Nr. anzeigenPreise & Kosten
Provision für Käufer
Das Erfolgshonorar in Höhe von 3,57 % aus dem Kaufpreis, inklusive gesetzl. MwSt., trägt der Käufer.
Lage
Das Mehrfamilienhaus befindet sich in der Gemeinde Wilhelmsdorf bei Emskirchen.
Das Haus
Kategorie
Mehrfamilienhaus
Baujahr
1954 /2010-2018
Bezug
vermietet
Derzeitige Nutzung
vermietet
Energie & Heizung
Warum sehe ich diese Anzeige? – Du siehst diese Anzeige basierend auf Ihrer Navigation auf unserer Website und den Suchkriterien, die du verwendet hast.
Energieausweistyp
Verbrauchsausweis
Gebäudetyp
Wohngebäude
Baujahr laut Energieausweis
1954
Wesentliche Energieträger
Öl
Gültigkeit
23.10.2023 bis 22.10.2033
Effizienzklasse
C
Endenergieverbrauch
81,30 kWh/(m²·a) - Warmwasser enthalten
Weitere Energiedaten
Energieträger
Öl
Heizungsart
Fußbodenheizung, Zentralheizung
Details
Ausstattung
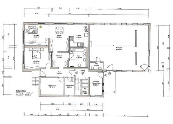
Erdgeschoss:
Lagerraum mit Estrichboden
Drei-Zimmer-Wohnung mit ca. 117 m² Wfl.
vermietet - KM: 660,-- p.M.
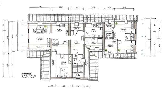
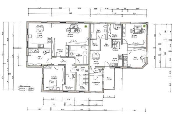
1.Obergeschoss:
Drei-Zimmer-Wohnung mit ca. 119 m² - leer stehend
Fünf-Zimmer-Maisonettewohnung mit Balkon (1.OG/DG)
mit ca. 133 m² Wfl. - vermietet - KM 770,-- EUR p.M...
Weitere Informationen
Maklerprovision
Das Erfolgshonorar in Höhe von 3,57 % aus dem Kaufpreis, inklusive MwSt., trägt der Käufer.
Alle genannten Angaben zum Objekt beruhen auf den Angaben des Eigentümers. Irrtum und Zwischenverkaufvorbehalten. Vorstehender Provisionsanspruch gilt auch, falls ein Lebensgefährte oder ein Familienmitglied...
Anbieter der Immobilie
Online-ID: 2ktpq5s
Referenznummer: HS 2692
Finde Angebote wie dieses
Hier geht es zu unserem Impressum, den Allgemeinen Geschäftsbedingungen, den Hinweisen zum Datenschutz und nutzungsbasierter Online-Werbung.