
Stelzig Immobilien
Herr Sebastian Stelzig
004 ···
Nr. anzeigenPreise & Kosten
Kaution
1.512,00
Warum sehe ich diese Anzeige? – Du siehst diese Anzeige basierend auf Ihrer Navigation auf unserer Website und den Suchkriterien, die du verwendet hast.
Lage
Lagebeschreibung - Bahnhofstraße, 03229 Altdöbern
Die Wohnung befindet sich in ruhiger, dennoch zentraler Lage von Altdöbern. Einkaufsmöglichkeiten, Bahnhof, Schule und alltägliche Infrastruktur sind fußläufig erreichbar. Die Umgebung ist geprägt von viel Grün, guter Anbindung an die B96 und Nähe zum Altdöberner See -...
Die Wohnung
Wohnungslage
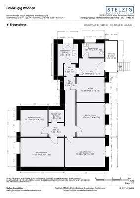
Erdgeschoss
Bezug
Sofort
Wohnanlage
Energie & Heizung
Warum sehe ich diese Anzeige? – Du siehst diese Anzeige basierend auf Ihrer Navigation auf unserer Website und den Suchkriterien, die du verwendet hast.
Energieausweistyp
Verbrauchsausweis
Gebäudetyp
Wohngebäude
Wesentliche Energieträger
GAS
Gültigkeit
bis 01.08.2035
Effizienzklasse
D
Endenergieverbrauch
127,60 kWh/(m²·a)
Weitere Energiedaten
Energieträger
Elektro, Gas
Heizungsart
Zentralheizung
Details
Objektbeschreibung
Diese großzügige 4-Raum-Wohnung mit ca.?108?m² überzeugt durch ihre gelungene Raumaufteilung, zwei Badezimmer, eine separate Veranda und vielfältige Nutzungsmöglichkeiten. Zur Wohnung gehören zwei Stellplätze, eine Garage sowie ein eigenes Gartenabteil mit Strom- und Wasseranschluss. Ein Kellerraum und ein Abstellraum runden...
Ausstattung
Diese großzügige 4-Raum-Wohnung bietet mit ca.?108?m² Wohnfläche viel Platz und eine durchdachte Raumaufteilung - ideal für Familien oder Paare mit Anspruch an Komfort, Stellfläche und Außenbereich.
Raumaufteilung & Innenausstattung:
+ Eingangsbereich mit Windfang und Flur
+ Veranda - geschützt und...
Preisinformation
2 Stellplätze
1 Garagenstellplatz
Weitere Informationen
Sonstiges
Nach Ihrer Anfrage erhalten Sie automatisch eine E-Mail mit einer digitalen Erstinformation für Ihren Besichtigungstermin.
Entdecken Sie weitere Immobilien auf unserer Homepage:
https://cottbus-immobilienmakler.immo
Sie möchten Ihre Immobilie verkaufen oder vermieten?
Kontaktieren Sie mich...
Anbieter der Immobilie
Online-ID: 2ku775y
Referenznummer: Objekt-220
Finde Angebote wie dieses
Hier geht es zu unserem Impressum, den Allgemeinen Geschäftsbedingungen, den Hinweisen zum Datenschutz und nutzungsbasierter Online-Werbung.