
Müller Immobilien
Frau Nadine Müller
017 ···
Nr. anzeigenPreise & Kosten
Provision für Käufer
2,38 inkl. MwSt.
Lage
Die Doppelhaushälfte liegt in einer ruhigen Wohnlage in Creußen. Hier finden Bewohner eine gute Anbindung an das Ortszentrum sowie an die umliegende Natur. Die Nachbarschaft ist geprägt von einer angenehmen Atmosphäre und einem familiären Zusammenhalt. Einkaufsmöglichkeiten, Schulen und Freizeiteinrichtungen sind in...
Das Haus
Kategorie
Doppelhaushälfte
Baujahr
1981
Bezug
nach Vereinbarung
Derzeitige Nutzung
vermietet
Energie & Heizung
Warum sehe ich diese Anzeige? – Du siehst diese Anzeige basierend auf Ihrer Navigation auf unserer Website und den Suchkriterien, die du verwendet hast.
Weitere Energiedaten
Haustyp
Massivhaus
Details
Objektbeschreibung
Es stehen 2 DHH zum Verkauf
Jede Doppelhaushälfte hat eine Wohnfläche von ca. 130 m² wurde im Jahr 1981 erbaut. In den Jahren 2024 und 2025 erfolgte die hochwertige energetische Sanierung, so dass der KfW 55 Standard erfüllt wird. Neben der energetischen Fassadendämmung durch ein Wärmedämmverbundsysten, wurde auch das...
Ausstattung
Aufwendige Energetische Sanierung 2024/2025 mit KfW55 Standard
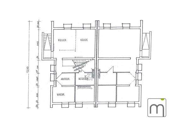
Räumlichkeiten:
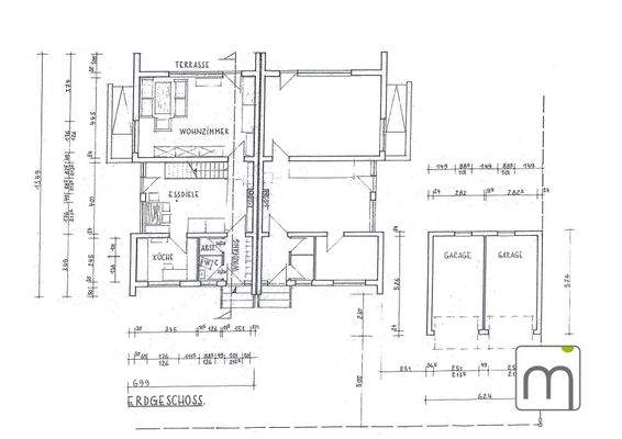
EG:
Wohnzimmer
Essdiele
Küche ohne Einbauküche
Abstellraum
WC
Windfang
Terrasse
OG:
Schlafzimmer
Kinderzimmer
Diele
Bad
Arbeitszimmer / Kinderzimmer
Balkon
DHH ist Komplett unterkellert mit...
Preisinformation
1 Garagenstellplatz, Kaufpreis: 5.000,00 EUR
Weitere Informationen
Sonstiges
Die Provision ist in der Preisvorstellung des Verkäufers (siehe beiliegendes Angebot) nicht enthalten.
Alle Angaben stammen vom Eigentümer, deshalb wird eine Haftung unsererseits ausgeschlossen. Wir haften nicht für Druckfehler. Das Angebot ist nur für Sie bestimmt und daher vertraulich zu behandeln. Bei...
Anbieter der Immobilie
Müller Immobilien
Rheinstr. 11, 95445 Bayreuth
Online-ID: 2kua95e
Referenznummer: 696066#tPKnel
Finde Angebote wie dieses
Hier geht es zu unserem Impressum, den Allgemeinen Geschäftsbedingungen, den Hinweisen zum Datenschutz und nutzungsbasierter Online-Werbung.