

LBS Immobilien GmbH
Frau Andrea Reinert-Clemens
068 ···
Nr. anzeigenPreise & Kosten
Provision für Käufer
3,57 % inkl. MwSt.
Wir haben einen provisionspflichtigen Maklervertrag in gleicher Höhe mit dem Verkäufer geschlossen (§ 656 c BGB).
Lage
Losheim liegt idyllisch am Rande des Hochwaldes und ist verkehrstechnisch über die B268 in die Richtungen Trier/Saarburg und Lebach/Dillingen/Saarlouis angebunden. Merzig und Mettlach erreichen Sie mit dem Auto in knapp 15 Minuten.
Aber um ehrlich zu sein gibt es eigentlich kaum einen Grund, Losheim zu verlassen, denn...
Das Haus
Kategorie
Einfamilienhaus
Baujahr
1930
Bezug
sofort
Energie & Heizung
Warum sehe ich diese Anzeige? – Du siehst diese Anzeige basierend auf Ihrer Navigation auf unserer Website und den Suchkriterien, die du verwendet hast.
Energieausweistyp
Bedarfsausweis
Gebäudetyp
Wohngebäude
Baujahr laut Energieausweis
1930
Wesentliche Energieträger
Öl
Gültigkeit
01.07.2025 bis 01.07.2035
Effizienzklasse
H
Endenergiebedarf
250,00 kWh/(m²·a)
Weitere Energiedaten
Haustyp
Massivhaus
Energieträger
Öl
Heizungsart
Zentralheizung
Details
Objektbeschreibung
Herzlich willkommen in Losheim, der Perle des Hochwaldes.
wir freuen uns, Ihnen hier in ruhiger Ortsrandlage ein interessantes Objekt anbieten zu können. Die Wohnimmobilie wurde in der Vergangenheit als geräumiges Einfamilienhaus genutzt, aufgrund der praktischen Aufteilung können jedoch auch 2 Wohneinheiten getrennt...
Ausstattung
Aufteilung:
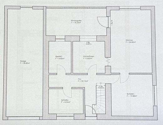
Erdgeschoss
- Wohn- und Esszimmer
- separate Küche
- 2 Schlafzimmer
- Wintergarten
- Bad
Obergeschoss
- Wohn- und Esszimmer
- separate Küche
- 2 Schlafzimmer
- Wintergarten
- Bad
Dachgeschoss:
- Dachspeicher
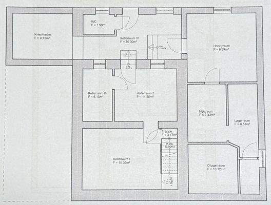
Kellergeschoss:
- Heizungskeller
-...
Weitere Informationen
Stichworte
Garage vorhanden, Stellplatz vorhanden, Nutzfläche: 200,00 m², Anzahl der Schlafzimmer: 4, Anzahl der Badezimmer: 2, Bundesland: Saarland, 2 Etagen
Anbieter der Immobilie
LBS Immobilien GmbH
Beethovenstraße 35-39, 66111 Saarbrücken

Online-ID: 2kukj5n
Referenznummer: 2025-PM-00441
Finde Angebote wie dieses
Hier geht es zu unserem Impressum, den Allgemeinen Geschäftsbedingungen, den Hinweisen zum Datenschutz und nutzungsbasierter Online-Werbung.