

TEKCE Real Estate
Herr Özkan Tekçe
+34 ···
Nr. anzeigenPreise & Kosten
Provision für Käufer
Bitte beachte, das Angebot kann bei Vertragsabschluss die Zahlung einer Provision beinhalten. Weitere Informationen erhältst Du vom Anbieter.
Die Immobilie
Zu diesem Angebot wurden vom Anbieter keine weiteren Daten hinterlegt. Für weitere Informationen bitte den Anbieter kontaktieren.
Nach Informationen fragenDetails
Objektbeschreibung
Kurzbeschreibung
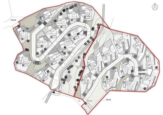
Bebauungsgrundstück in Bodrum Gümüslük mit Investitionspotenzial. Vorläufiges Projekt gezeichnet. Geeignet für freistehende Villen, in Strandnähe gelegen.
Objekt
Grundstück in Strandnähe, geeignet für den Bau von freistehenden Villen in Bodrum Gümüslük
Das erschlossene Grundstück befindet sich...
Weitere Informationen
Stichworte
Wohnfläche: 30.000,00 m², Nutzfläche: 30.000,00 m², Ladenfläche: 30.000,00 m², Bundesland: Bodrum, 1 Etagen
Anbieter der Immobilie
TEKCE Real Estate
C/El Montículo 8, Benalmádena, 29631 MÁLAGA

Online-ID: 2kupm5x
Referenznummer: BJV-00623-0-Residential
Finde Angebote wie dieses
Hier geht es zu unserem Impressum, den Allgemeinen Geschäftsbedingungen, den Hinweisen zum Datenschutz und nutzungsbasierter Online-Werbung.