Version: 8.25.1Navigation überspringen
1.350 €
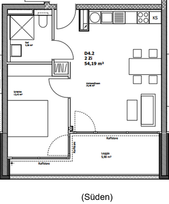
2 Zimmer  •  54 m²
Immowelt logo

Wohnung zur Miete - Erstbezug
1.350 €
2 Zimmer  •  54 m²

Betreutes Wohnen - Barrierefreie 2-Zimmer-Wohnungen mit Loggia zur Miete - Neubau

Die Wohnung ist Teil des betreuten Wohnens im Haus Ravensberg. Das Konzept "betreutes Wohnen" bedeutet, dass pflegebedürftige Menschen (jung & alt) selbständig in den Wohnungen leben und durch einen Pflegedienst betreut werden. Serviceleistungen des betreuten Wohnens werden über einen separaten Vertrag durch einen Pflegedienst erbracht. Der Hausnotruf wird zentral zur Verfügung gestellt und ist rund um die Uhr besetzt. Ein sehr großzügiger Gemeinschaftsraum (118 m²) steht im Erdgeschoss für alle Mieter des betreuten Wohnens zur Mitbenutzung zur Verfügung. Dieser dient unter anderem als Treffpunkt für die Mieter, für gemeinsame Veranstaltungen und Angebote des Pflegedienstes.

Die helle, barrierefreie Wohnung befindet sich in dem Klinkerneubau in der Steinstraße 27, Konstanz in Laufnähe des Bahnhofs Petershausen. Das Haus ist ein Neubau mit KfW55- Standard und moderner Infrastruktur. So sind z.B. Glasfaseranschluss und Aufzug vorhanden. Separates Kellerabteil sowie Fahrradabstellraum sind vorhanden. Ein Tiefgaragenstellplatz für Autos inkl. E-Lademöglichkeit am Stellplatz sowie separate Fahrradstellplätze stehen zur Anmietung zur Verfügung.

Das Gebäude ist derzeit in der Fertigstellung. Erstbezug ist für September 2025 geplant.

Merkmale

  • Bezug: September 2025
  • Personenaufzug
  • Kelleranteil
  • Tiefgarage
  • Balkon
  • Bergblick
  • Barrierefrei
  • Bad mit Dusche

Grundrisse

Grundrisse
1 / 1

Realisiere Dein Projekt

Bausubstanz und Energie

Möchtest du Details zum Energieverbrauch?info_energy_calculation-icon
  • Baujahr2025
  • Zustand der ImmobilieNeubau, Erstbezug
  • HaustypKfW 55
  • HeizungsartZentralheizung: Fußbodenheizung
  • EnergieträgerGas, Pellets
Immowelt logo

Mietkosten

Kaltmiete
25 €/m²
1.350 €
Kaution
keine Angabe
Weitere Preisinformationen
Die Kaltmiete versteht sich zzgl. Nebenkosten und Kosten des Pflegedienstes

Lage

address-icon
Steinstraße 27PetershausenKonstanz (78467)
Die verkehrstechnisch bestens angebundene Wohnung befindet sich am Nordrand des Ravensberg Areals Ecke Schneckenburgstraße/Steinstraße in Konstanz. Sie ist mit dem öffentlichen Nahverkehr sehr gut über den Bahnhof Petershausen oder über die Bushaltestellen in der Nähe erreichbar. Mit dem Fahrrad ist man über die Schneckenburgstraße und den Bodenseeradweg jenseits der Bahngleise schnell in der Altstadt oder am See. Mit dem Auto kommt man in die eine Richtung schnell auf die B33 Richtung Reichenau, Radolfzell, Singen sowie auf die Schweizer Autobahn Richtung Zürich und in der anderen Richtung zur Fähre nach Meersburg. Fußläufig sind der Seerhein mit seinen Restaurants, ebenso Geschäfte (u.a. Rewe, großer Edeka, DM, Media Markt, Apotheke und Bäckereien) erreichbar.

Weitere Informationen

Besichtigungstermine Bitte kontaktieren Sie uns über das Kontaktformular. Wir werden uns zeitnah mit Ihnen in Verbindung setzen.
Besichtigungen sind voraussichtlich ab Mitte Juli in der Kalenderwoche 30 möglich. Stichworte Sonstiges/Wohnen: seniorengerechtes Wohnen Versorgung: Städtische Wasserversorgung, Städtische Stromversorgung, Eigene Stromversorgung Serviceleistungen: Hausmeister Sonstiges: Neubaustandard

Weitere Services

Lust auf eine Besichtigung?
Eine Frage zur Immobilie?
Mit einer persönlichen Nachricht hast du bessere Chancen auf eine Antwort.
Mit der Nutzung der oben angegebenen Telefonnummer oder durch Klicken auf „Kontaktieren“ akzeptierst Du die Allgemeinen Nutzungsbedingungen, denen Du jederzeit widersprechen kannst. Weitere Informationen zum Datenschutz

Über den Anbieter

Keine Telefonnummer hinterlegt
Schneckenburgstr. 46, 78467 Konstanz
partner badgepartner badge
10 Jahre Partnerschaft + Diamond Partner
Keine Telefonnummer hinterlegt

Weitere Unterlagen

Online-ID: 25LVDVJ8IKKM
Ravensberg-Wohnungsbau GmbH
Mit einer persönlichen Nachricht hast du bessere Chancen auf eine Antwort.
Mit der Nutzung der oben angegebenen Telefonnummer oder durch Klicken auf „Kontaktieren“ akzeptierst Du die Allgemeinen Nutzungsbedingungen, denen Du jederzeit widersprechen kannst. Weitere Informationen zum Datenschutz
Wie zufrieden bist du mit dieser Seite (nicht mit der Immobilie selbst)?