

Kern-Haus AG Niederlassung Dresden
Frau Nicole Ulbricht
035 ···
Nr. anzeigenPreise & Kosten
Provision für Käufer
provisionsfrei
Lage
Graupa als grüner Stadtteil von Pirna liegt im herrlichen oberen Elbtal und ist angenehm umwaldet. Graupa hat ein gut funktionierendes Versorgungsnetz und ist per Bus mit dem Umland verbunden. Die neu Umgehungsstraße bringt Sie schnell zur BAB , nach Pirna und in die Landeshauptstadt. Der Baugrundstück befindet sich in einer...
Das Haus
Kategorie
Einfamilienhaus
Baujahr
2026
Energie & Heizung
Warum sehe ich diese Anzeige? – Du siehst diese Anzeige basierend auf Ihrer Navigation auf unserer Website und den Suchkriterien, die du verwendet hast.
Energieausweistyp
Bedarfsausweis
Gebäudetyp
Wohngebäude
Effizienzklasse
A+
Weitere Energiedaten
Heizungsart
Zentralheizung
Details
Objektbeschreibung
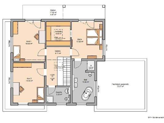
Das Bauhaus Anteo ist ein modernes Kern-Haus mit 214 m². Hier hat eine Familie genügend Platz um sich Wohlzufühlen.
Das Wohn- und Esszimmer auf 55 m² wird zum Lebensmittelpunkt des Hauses, denn direkt angeschlossen ist die offene Küche mit Speisekammer. Große Fensterelemente im Wohnbereich bieten eine grenzenlose...
Ausstattung
5 Zimmer, offene Küche, Diele, 2 x Dusche, Galerie, Bad, Ankleide, Hauswirtschaftsraum, Speisekammer, Balkon, Doppelgarage
Das gezeigte Traumhaus im Überblick:
+ Massivhaus als Ausbauhaus im Sinne der Bau- und Ausstattungsbeschreibung "Paulo"
+ Gebäudehülle ist für Effizienzhaus 40 optimiert
+ Inklusive...
Weitere Informationen
Sonstiges
Kern-Haus
Kern-Haus baut individuelle und massive Architektenhäuser zu einem attraktiven Preis-Leistungs-Verhältnis - und das bereits mit einer Erfahrung seit 1980.
Maximale Sicherheit bei Kern-Haus:
+ 10 Jahre Gewährleistung auf die wesentlichen Bauleistungen
+ Bis zu 18 Monate...
Anbieter der Immobilie
Kern-Haus AG Niederlassung Dresden
Am Sandberg 2, 01468 Moritzburg

Online-ID: 2kv625y
Referenznummer: WDD 10349
Finde Angebote wie dieses
Hier geht es zu unserem Impressum, den Allgemeinen Geschäftsbedingungen, den Hinweisen zum Datenschutz und nutzungsbasierter Online-Werbung.