
Ubben Immobilien
Herr Carsten Janssen
004 ···
Nr. anzeigenPreise & Kosten
Provision für Käufer
3,57 % inkl. MwSt.
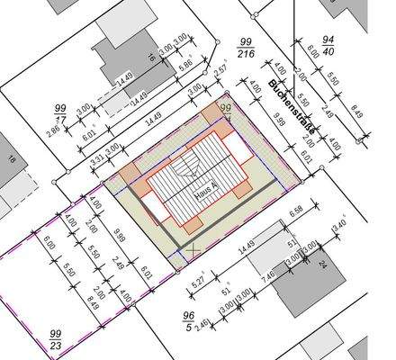
Lage
Die angebotene Neubau-Doppelhaushälfte entsteht in ruhiger und familienfreundlicher Wohnlage von Warsingsfehn, einem beliebten Ortsteil der Gemeinde Moormerland im Landkreis Leer. Die Buchenstraße ist eine verkehrsberuhigte Anliegerstraße, die durch ihre angenehme Nachbarschaftsbebauung mit überwiegend Einfamilien- und...
Das Haus
Kategorie
Doppelhaushälfte
Baujahr
2026
Bezug
01.03.2026
Energie & Heizung
Warum sehe ich diese Anzeige? – Du siehst diese Anzeige basierend auf Ihrer Navigation auf unserer Website und den Suchkriterien, die du verwendet hast.
Energieausweistyp
Bedarfsausweis
Gebäudetyp
Wohngebäude
Baujahr laut Energieausweis
2026
Wesentliche Energieträger
LUFTWP
Gültigkeit
bis 01.07.2035
Effizienzklasse
A
Endenergiebedarf
14,30 kWh/(m²·a)
Weitere Energiedaten
Heizungsart
Fußbodenheizung, Luft-/Wasser-Wärmepumpe
Details
Objektbeschreibung
In attraktiver Wohnlage von Warsingsfehn entsteht diese moderne Neubau-Doppelhaushälfte, die mit einer durchdachten Raumaufteilung, zeitgemäßer Technik und hochwertiger Bauweise überzeugt. Mit einer Wohnfläche von ca. 102 m² bietet jede Haushälfte ein ideales Zuhause für Paare oder Familien, die Wert auf modernes Wohnen in...
Ausstattung
- Wärmepumpe
- Fußbodenheizung
-elektr. Außenrollos
- Terrasse
Preisinformation
2 Stellplätze
Weitere Informationen
Stichworte
Anzahl der Schlafzimmer: 3, Anzahl der Badezimmer: 1, Anzahl der separaten WCs: 1, Anzahl Terrassen: 1
Anbieter der Immobilie
Online-ID: 2kvf45u
Referenznummer: 25-641-07
Finde Angebote wie dieses
Hier geht es zu unserem Impressum, den Allgemeinen Geschäftsbedingungen, den Hinweisen zum Datenschutz und nutzungsbasierter Online-Werbung.