
Deutsche Bank Immobilien GmbH
Herr Mirco Borchers
017 ···
Nr. anzeigenPreise & Kosten
Kaution
1.100,00
Provision für Mieter
provisionsfrei
Warum sehe ich diese Anzeige? – Du siehst diese Anzeige basierend auf Ihrer Navigation auf unserer Website und den Suchkriterien, die du verwendet hast.
Lage
Weilerswist ist eine Gemeinde im Kreis Euskirchen in Nordrhein-Westfalen. Weilerswist liegt im nördlichen Teil des Kreises Euskirchen, grenzt im Norden an die Stadt Brühl und die Stadt Erftstadt, im Süden an die Stadt Euskirchen, im Westen an die Stadt Zülpich und im Osten an die Stadt Bornheim und die Gemeinde Swisttal.
Büro-/Praxisfläche
Baujahr
1992
Bezug
sofort
Energie & Heizung
Warum sehe ich diese Anzeige? – Du siehst diese Anzeige basierend auf Ihrer Navigation auf unserer Website und den Suchkriterien, die du verwendet hast.
Wärme
Strom
Energieausweistyp
Verbrauchsausweis
Gebäudetyp
Nicht-Wohngebäude
Baujahr laut Energieausweis
1992
Wesentliche Energieträger
Gas
Gültigkeit
19.12.2014 bis 18.12.2024
Endenergieverbrauch (Wärme)
87,00 kWh/(m²·a)
Endenergieverbrauch (Strom)
7,10 kWh/(m²·a)
Weitere Energiedaten
Energieträger
Gas
Details
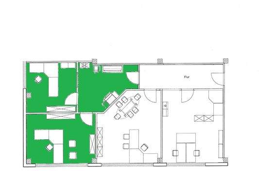
Objektbeschreibung
In gut sichtbarer Lage von Weilerswist haben wir in einer Büroetage eine sehr schöne Büroeinheit bestehend aus einem Empfangsbereich und 2 Büros zu vermieten. Der gesamte Bürotrakt hat ca. 60m² zuzüglich ca. 12m² allgemeiner Fläche. Diese Einheit ist ideal für einen Rechtsanwalt, Steuerberater oder ein kleines Unternehmen...
Ausstattung
- 60m² Bürofläche zzgl. 12m² Gemeinschaftsfläche
- 550,00€ Kaltmiete zzgl. MwSt
- 235,00€ pauschale Nebenkosten zzgl. MwSt inkl. Strom, Wasser, Heizung, etc.
- verbrauchsbasierter Energieausweis/ Kennwert 95,7
- Baujahr ca.1992
-Gemeinschaftstoiletten für alle Büros
- Reinigung im Haus nach Absprache
-...
Preisinformation
Nettokaltmiete: 550,00 EUR
Weitere Informationen
Sonstiges
\nRechtlicher Hinweis auf den Urheber des Exposés\nMirco Borchers\nSelbstständiger Immobilienberater\nKölnstraße 54 53909 Zülpich\nE-Mail: mirco.borchers@db.com\nTelefon: 0179 2680245\n\nAufsichtsbehörde: Kreisverwaltung Euskirchen\nInternet: https://www.kreis-euskirchen.de\nAnschrift: Jülicher Ring 32, 53879...
Anbieter der Immobilie
Deutsche Bank Immobilien GmbH
Hahnenstraße 9, 50171 Kerpen
Online-ID: 2kvqg5w
Referenznummer: 42530105-117608
Finde Angebote wie dieses
Hier geht es zu unserem Impressum, den Allgemeinen Geschäftsbedingungen, den Hinweisen zum Datenschutz und nutzungsbasierter Online-Werbung.