

BPB Immobilien GmbH
Frau Andrea Liebel
040 ···
Nr. anzeigenPreise & Kosten
Provision für Käufer
provisionsfrei
Lage
Wo die Ruhe des Nordens auf das Herz der Hansestadt trifft: An den Ufern der Wakenitz liegt St. Jürgen, der südlichste der drei historischen Vorstädte mit ca. 45.000 Einwohnern. Hier, wo die Natur ganz nah ist und die Stadt pulsiert, genießen die Bewohner das Beste aus zwei Welten - nur wenige Schritte von der Lübecker...
Die Wohnung
Wohnungslage
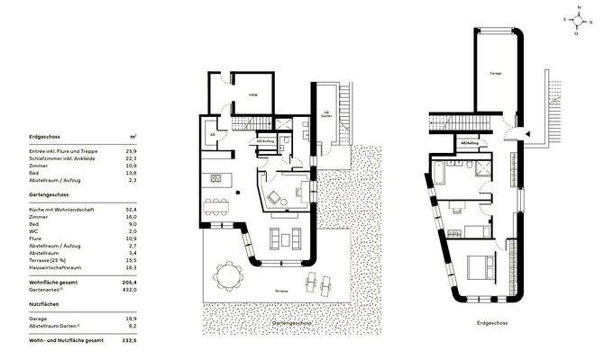
Erdgeschoss
Bezug
2026
Wohnanlage
Energie & Heizung
Warum sehe ich diese Anzeige? – Du siehst diese Anzeige basierend auf Ihrer Navigation auf unserer Website und den Suchkriterien, die du verwendet hast.
Energieausweistyp
Bedarfsausweis
Gebäudetyp
Wohngebäude
Wesentliche Energieträger
Fernheizung
Gültigkeit
18.09.2022 bis 18.09.2032
Effizienzklasse
B
Endenergiebedarf
62,50 kWh/(m²·a)
Weitere Energiedaten
Energieträger
Fernwärme
Haustyp
KfW 55
Heizungsart
Fußbodenheizung
Details
Objektbeschreibung
Letzter Halt: Wasserlage!
Und zwar in Bestform: Auf dem letzten verfügbaren Wassergrundstück in St. Jürgen entsteht ein Ensemble aus drei stilvollen Stadtvillen – hanseatisch-modern, großzügig geplant und in bester Nachbarschaft zum Wasser. Das 4.420 m² große Areal ist nicht nur eine Rarität, sondern auch ein Versprechen...
Ausstattung
Luft, Licht und Luxus – das sind nicht nur Schlagworte, sondern gelebte Realität in dieser traumhaften Gartenwohnung. Der großzügige, offen gestaltete Grundriss lädt zum Durchatmen ein, die bodentiefen Fensterflächen lassen die Grenzen zwischen Innen und Außen beinahe verschwinden.
Natürlich gibt es auch einen...
Weitere Informationen
Stichworte
Sonstiges: ISDN
Anbieter der Immobilie
BPB Immobilien GmbH
Weidestr. 132, 22083 Hamburg-Nord

Online-ID: 2kw2t56
Finde Angebote wie dieses
Hier geht es zu unserem Impressum, den Allgemeinen Geschäftsbedingungen, den Hinweisen zum Datenschutz und nutzungsbasierter Online-Werbung.