Version: 8.24.1Navigation überspringen
Raiffeisenbank Straubing eG
Mietkosten auf Anfrage

Büro zur Miete • provisionsfrei
Mietkosten auf Anfrage

PROVISIONSFREI: Gewerbeflächen in Straubing-Ittling zu vermieten

Individuell belegbar ist dieses Gewerbeobjekt mit ca. 1.455 m² Gesamtfläche in Straubing-Ittling. Über drei Stockwerke hinweg verteilen sich insgesamt 34 Büro-/Besprechungsräume mit bis zu ca. 100 Arbeitsplätzen. Das Objekt lässt sich in mehrere abgetrennte Einheiten aufteilen. Im Keller befinden sich großzügige Lagerflächen und ausreichend Sanitärräume.

Im Erdgeschoss befinden sich zwei separate Gewerbeeinheiten die bereits vermietet sind.

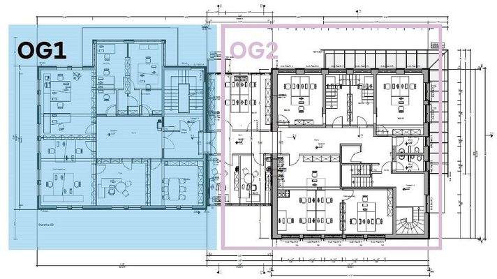
Im Obergeschoss finden sich zwei weitere Einheiten: Das "Obergeschoss 1" (linke Seite) mit ca. 163 m² sowie das "Obergeschoss 2" mit ca. 214 m².

Im "Dachgeschoss 2" auf der rechten Seite mit ca. 61 m², welches zusammen mit dem "Obergeschoss 2" vermietet wird, befindet sich eine Küche mit einem Sozialraum. Im angrenzenden großem Raum können Besprechungen, Schulungen etc. stattfinden.

Auf der linken Seite des Dachgeschosses mit ca. 110 m² befinden sich weitere Büroeinheiten "Dachgeschoss 1". Hier ist genügend Platz für Ihre individuelle Einrichtungswünsche.

Für kurze Pausen oder an schönen, sonnigen Tagen bietet die Dachterrasse einen Entspannungsort und bietet einen herrlichen Ausblick.

Im Kellerbereich befindet sich das Archiv, 5 Sanitärräume, ein Waschraum, die Haustechnik und weitere Lagerräume.

Ausreichend Parkmöglichkeiten befinden sich direkt am und um das Gebäude, sowie bietet die Bahn-Haltestation eine weitere attraktive Anbindung zu diesem Gewerbeobjekt

Die Gewerbeeinheit:
EG 1: 7 (Büro-)Räume
EG 2: 6 (Büro-)Räume, Empfang, WC - vermietet -
OG 1: 6 (Büro-)Räume, Abstellkammer
OG 2: 8 (Büro-)Räume, WC
DG 1: 3 (Büro-)Räume, WC, Küche
DG 2: 1 (Büro-)Räume, Küche
UG: 3 Lagerräume, 5 Sanitärräume, Technik, etc.

Die Gewerbeeinheit steht leer und kann jederzeit besichtigt werden.

Die Mietpreise variieren je nach Einheit.
Bei der Anmietung von mehreren Einheiten wird ein individueller Mietpreis vereinbart.

Das Obergeschoss 2 und Dachgeschoss 2 werden zusammen vermietet.

Der Stauraum im Keller kann nach individuellem Bedarf gemietet werden.

Merkmale

  • Einbauküche
  • Keller
  • 40 Stellplätze
  • Garten
Gewerbeeinheit mit ca. 1.455 m² Gesamtfläche

EG 1 ca. 187 m² mit ca. 19 Arbeitsplätzen - vermietet -
EG 2 ca. 233 m² mit ca. 23 Arbeitsplätzen - vermietet -
OG 1 ca. 163 m² mit ca. 16 Arbeitsplätzen
OG 2 ca. 214 m² mit ca. 22 Arbeitsplätzen
DG 1 ca. 110 m² mit ca. 12 Arbeitsplätzen
DG 2 ca. 61 m² mit ca. 7 Arbeitsplätzen
KG ca. 376 m²

34 Büro- Besprechungsräume
Dachterrasse
Zwei vollausgestattete Küche
Sozialraum / Community Area
Insgesamt 9 Sanitärräume
Direkt gegenüber Bahnhofsstelle Ittling
Ausreichend Parkmöglichkeiten (40 Stellplätze) direkt vor der Tür
Separate Eingänge möglich
Kellergeschoss mit ca. 287 m² Nutzfläche, darunter viel Lagerfläche

Grundrisse

Grundrisse
1 / 6

Realisiere Dein Projekt

Bausubstanz und Energie

Energieausweis

Endenergieverbrauch (Wärme)

Endenergieverbrauch (Strom)

  • Baujahr2002
  • Zustand der ImmobilieGepflegt
  • HeizungsartZentralheizung
  • EnergieträgerElektro, Pellets
MediumRectangleTop

Mietkosten

Miete auf Anfrage
Provision für Mieter
provisionsfrei
Kaution
keine Angabe

Lage

address-icon
IttlingStraubing (94315)
Der Anbieter hat die genaue Adresse nicht freigegeben
Die Gewerbeeinheit befindet sich in Ittling, einem Ortsteil von Straubing, direkt am dortigen Bahnhof. Bis zur B20 sind es ca. 1,5 km, bis ins Stadtzentrum von Straubing ca. 5 km.

Durch die öffentlichen Verkehrsmittel, die Sie in wenigen Minuten von dem Objekt aus erreichen, kommen Sie wunderbar in die Innenstadt, zu den Einkaufsmöglichkeiten, die Sie für den Alltag benötigen, Ärztezentrum, Bildungseinrichtungen wie auch die Universität.

Straubing ist mit rund 48.000 Einwohnern eine liebenswerte Studentenstadt, in Mitte des Gäubodens. Altbayerische Lebensart, Kultur und modernes Leben vereinen sich hier. Die niederbayerische Stadt spielt in allen Bereichen eine führende Rolle, wie zum Beispiel in modernen Freizeiteinrichtungen, Tiergarten und das neue Stadttheater.
In den warmen Sommermonaten ist die Donau ein optimaler Ort um sich mit Freunden oder Familie eine gemütliche zeit zu machen. Auch die fünfte Jahreszeit, das Gäubodenvolksfest, zieht als zweitgrößtes Volksfest Bayerns jedes Jahr mehr als eine Millionen Besucher nach Straubing.

Weitere Informationen

Stichworte Stellplatz vorhanden, Gesamtfläche: 1.455,00 m², Bundesland: Bayern

Weitere Services

Lust auf eine Besichtigung?
Eine Frage zur Immobilie?
Nachricht hinzufügen
Mit der Nutzung der oben angegebenen Telefonnummer oder durch Klicken auf „Kontaktieren“ akzeptierst Du die Allgemeinen Nutzungsbedingungen, denen Du jederzeit widersprechen kannst. Weitere Informationen zum Datenschutz

Über den Anbieter

Wittelsbacherhöhe 14, 94315 Straubing
partner badge
10 Jahre Partnerschaft
Frau Daniela BastDein Kontakt
Online-ID: 2kw3z5j
Referenznummer: 2407-E
Raiffeisenbank Straubing eG
Raiffeisenbank Straubing eG
Nachricht hinzufügen
Mit der Nutzung der oben angegebenen Telefonnummer oder durch Klicken auf „Kontaktieren“ akzeptierst Du die Allgemeinen Nutzungsbedingungen, denen Du jederzeit widersprechen kannst. Weitere Informationen zum Datenschutz
MediumRectangleTop
MediumRectangleBottom
MediumRectangleTop
Wie zufrieden bist du mit dieser Seite (nicht mit der Immobilie selbst)?