
PWV - Projekt- und Wohnungsverwaltungs G
Herr Frederik Möhlmann
049 ···
Nr. anzeigenPreise & Kosten
Warum sehe ich diese Anzeige? – Du siehst diese Anzeige basierend auf Ihrer Navigation auf unserer Website und den Suchkriterien, die du verwendet hast.
Lage
Aufgrund der Lage gilt Aurich Haxtum als eines der bevorzugten Wohngebiete von Aurich.
Am Stadtrand gelegen und trotzdem schnell mit dem Fahrrad, innerhalb von 10 Minuten, in der Stadtmitte.
Schulen, Kindergärten, Ärzte, Einkaufsmöglichkeiten und einen Baumarkt sowie ein vielfältiges Freizeitangebot finden Sie vor Ort.
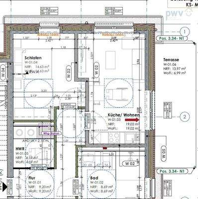
Die Wohnung
Wohnungslage
Erdgeschoss
Bezug
sofort
Wohnanlage
Energie & Heizung
Warum sehe ich diese Anzeige? – Du siehst diese Anzeige basierend auf Ihrer Navigation auf unserer Website und den Suchkriterien, die du verwendet hast.
Weitere Energiedaten
Heizungsart
Luft-/Wasser-Wärmepumpe, Zentralheizung
Details
Objektbeschreibung
Genießen Sie Ihr neues und modernes Zuhause in Aurich Haxtum!
Diese, in einem 10-Parteienhaus gelegene, Erdgeschosswohnung wird nach modernstem Standard gebaut . Es handelt sich um einen Erstbezug.
Lichtdurchflutete Räume, helle Vinylböden, weiße Innentüren, ein modernes Bad sowie eine Süd-West Terrasse runden dieses...
Ausstattung
Diese schöne Wohnung verfügt über folgende Ausstattung:
- offener Wohn- und Essbereich mit Kochbereich ( ohne Einbauküche )
- Schlafzimmer
- Bad mit ebenerdiger Dusche
- Hauswirtschaftsraum
- Vinylböden
- Elektrische Rollläden
- Fußbodenheizung mit Einzelraumthermostaten
- Terrasse
- kleiner...
Preisinformation
1 Stellplatz
Weitere Informationen
Sonstiges
Ein Energieausweis ist in Vorbereitung und kann bei Besichtigung vorgelegt werden.
Gerne stehen wir auch am Wochenende für Besichtigungen zur Verfügung.
Bei der hier angebotenen Wohnung handelt es sich um eine Musterwohnung. Weitere Wohnungen stehen zur Verfügung. Angeboten werden 2- und...
Anbieter der Immobilie
Online-ID: 2kw9h59
Referenznummer: 265
Finde Angebote wie dieses
Hier geht es zu unserem Impressum, den Allgemeinen Geschäftsbedingungen, den Hinweisen zum Datenschutz und nutzungsbasierter Online-Werbung.