

L&S Immobilienservice
Frau Akad. IM. Barbara Lebenbauer
066 ···
Nr. anzeigenPreise & Kosten
Provision für Käufer
3% + USt.
Lage
Die Lage überzeugt durch die gelungene Kombination aus Autobahnnähe und angenehmer Ruhelage und eignet sich damit ideal für alle, die eine gute Erreichbarkeit schätzen, ohne auf Wohnqualität...
Das Haus
Baujahr
2008
Energie & Heizung
Warum sehe ich diese Anzeige? – Du siehst diese Anzeige basierend auf Ihrer Navigation auf unserer Website und den Suchkriterien, die du verwendet hast.
Heizwärmebedarf (HWB)
57,50 kWh/(m²·a)
Gesamtenergieeffizienz (fGEE)
0,85
Weitere Energiedaten
Energieträger
Erdwärme
Details
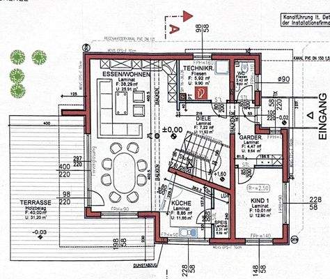
Objektbeschreibung
Dieses moderne Einfamilienhaus in Massivbauweise vereint zeitlose Architektur mit effizienter Energietechnik – auf einem sonnigen Eckgrundstück in ruhiger Lage. Mit Photovoltaik, Erdwärme und hochwertiger Ausstattung bietet die Immobilie sowohl stilvollen Wohnkomfort als auch bemerkenswerte Betriebskostenersparnis. Der...
Weitere Informationen
Sonstiges
Highlights
Baujahr: 2008
Bauweise: Massivhaus
Grundstück: ca. 743?m²
Wohnfläche: ca. 164m²
Bruttogeschossfläche gesamt: ca. 219?m²
Beheizung: Erdwärmepumpe mit Fußbodenheizung
PV-Anlage mit 10?kWp, Netzeinspeisung, Stromverbrauch nur ca. 6.000?kWh (inkl. Poolpumpe!)
Sehr geringe...
Anbieter der Immobilie
L&S Immobilienservice
Ressavarstraße 44, 8230 HARTBERG

Online-ID: 2kwcz5j
Finde Angebote wie dieses
Günstige Immobilienfinanzierung einfach online berechnen
Persönliches Angebot berechnenWarum sehe ich diese Werbung? – Du siehst diese Werbung basierend auf Deiner Navigation auf unserer Website und der von Dir verwendeten Suchkriterien.
Diese Werbung wird bezahlt von durchblicker
Werbung melden
Hier geht es zu unserem Impressum, den Allgemeinen Geschäftsbedingungen, den Hinweisen zum Datenschutz und nutzungsbasierter Online-Werbung.