
Volksbank eG Emstek Essen Cappeln
Frau Sandra Bührmann
004 ···
Nr. anzeigenPreise & Kosten
Provision für Käufer
Bitte beachte, das Angebot kann bei Vertragsabschluss die Zahlung einer Provision beinhalten. Weitere Informationen erhältst Du vom Anbieter.
Lage
Die angebotene Obergeschosswohnung befindet sich in Essen (Oldenburg), einer charmanten und familienfreundlichen Gemeinde im Landkreis Cloppenburg.
Dank der zentralen Lage sind Einkaufsmöglichkeiten, gastronomische Einrichtungen und Erholungsgebiete leicht zugänglich. Die Gemeinde Essen (Oldenburg) verbindet ländliche...
Die Wohnung
Wohnungslage
Erdgeschoss
Wohnanlage
Details
Objektbeschreibung
Diese modernen und vermieteten Eigentumswohnungen, erbaut im Jahr 2024 und bezugsfertig seit 2025, bieten ein erstklassiges Wohnambiente. Als Neubau präsentieren sich diese zwei 8-Parteien-Immobilien in exzellentem Zustand mit höchstem Komfort.
Die Errichtung des Gebäudes erfolgte nach dem Gebäudeenergiegesetz (GEG) 2020...
Ausstattung
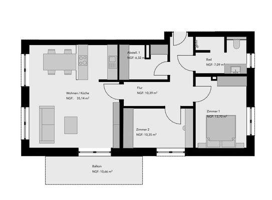
- Wohnküche mit 34,63 qm
- Zimmer 1 mit 13,70 qm
- Zimmer 2 mit 10,35 qm
- Badezimmer mit 7,01 qm
- Balkon für entspannte Stunden im Freien
- Moderne und effiziente Wärmepumpe für umweltfreundliches Heizen
- PKW-Stellplatz
Preisinformation
1 Stellplatz
Weitere Informationen
Sonstiges
Weitere Eigentumswohnungen stehen zum Erwerb zur Verfügung:
2 x EG 86,98 qm Wohnung:
2 Zimmer + Wohnküche, Bad, Abstellraum, Terrasse zum Preis von je 313.000 €.
(Mieteinnahmen von je 960,00 € mtl. zzgl. NK)
2 x EG 68,07 qm Wohnung:
1 Zimmer + Wohnküche, Bad, Abstellraum, Terrasse zum...
Anbieter der Immobilie
Volksbank eG Emstek Essen Cappeln
Am Markt 1, 49692 Cappeln (Oldenburg)
Online-ID: 2kwdy5y
Referenznummer: 2025-00042-08
Finde Angebote wie dieses
Hier geht es zu unserem Impressum, den Allgemeinen Geschäftsbedingungen, den Hinweisen zum Datenschutz und nutzungsbasierter Online-Werbung.