
Meilenstein Realitäten GmbH
Herr Daniel Schwarzmann
004 ···
Nr. anzeigenPreise & Kosten
inkl. Betriebskosten
in Gesamtmiete enthalten
Kaution
2.850,00
Warum sehe ich diese Anzeige? – Du siehst diese Anzeige basierend auf Ihrer Navigation auf unserer Website und den Suchkriterien, die du verwendet hast.
Lage
Diese exklusive Immobilie befindet sich in einer der begehrtesten und historisch bedeutendsten Lagen Kärntens - direkt am Hauptplatz von Villach, mit unverbaubarem Blick auf den Dom und mitten im architektonischen und gesellschaftlichen Zentrum der Stadt.
Die Altstadt von Villach besticht durch ihren Charme, ihre...
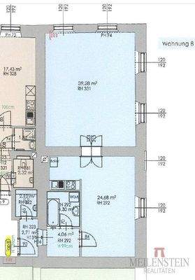
Die Wohnung
Bezug
sofort
Energie & Heizung
Warum sehe ich diese Anzeige? – Du siehst diese Anzeige basierend auf Ihrer Navigation auf unserer Website und den Suchkriterien, die du verwendet hast.
Weitere Energiedaten
Energieträger
Fernwärme
Heizungsart
Zentralheizung
Details
Objektbeschreibung
Im Herzen von Villach, direkt am Hauptplatz und mit herrlichem Blick zum Dom, entsteht derzeit ein wahres Altbaujuwel: Diese großzügige Wohnung wird aktuell umfassend saniert und verbindet historischen Charme mit modernem Wohnkomfort. Die Fertigstellung ist mit 01. Oktober 2025 geplant - eine rechtzeitige Reservierung ist...
Preisinformation
Nettokaltmiete: 535,17 EUR
Weitere Informationen
Stichworte
Anzahl der Schlafzimmer: 1, Anzahl der Badezimmer: 1, Anzahl der separaten WCs: 1, Bundesland: Kärnten, Distanz zum Kindergarten: 0.30, Distanz zur Grundschule: 0.10, Distanz zur Realschule: 0.50, Distanz zur nächsten Einkaufsmöglichkeit: 0.01, Distanz zum Gymnasium: 1.00, Distanz zum Hauptbahnhof: 0.60, Distanz...
Anbieter der Immobilie
Meilenstein Realitäten GmbH
Maria-Theresien-Straße, 34, 6020 Innsbruck
Online-ID: 2kwh25w
Referenznummer: DS3392
Finde Angebote wie dieses
Hier geht es zu unserem Impressum, den Allgemeinen Geschäftsbedingungen, den Hinweisen zum Datenschutz und nutzungsbasierter Online-Werbung.