
VON POLL IMMOBILIEN Hochtaunus - Carola Öhl
Firma VON POLL IMMOBILIEN Shop Hochtaunus
+49 ···
Nr. anzeigenPreise & Kosten
Provision für Käufer
Käuferprovision beträgt 3,57 % (inkl. MwSt.) des beurkundeten Kaufpreises
Lage
Die Gemeinde Weilrod befindet sich im Weiltal inmitten des Naturparks Hochtaunus.
Eine idyllischere und erholsamere Lage findet sich kaum und die Freitzeitmöglichkeiten sind überaus vielfältig.
Beliebt bei Radfahrern, Joggern und Spaziergängern ist das malerische Weiltal, welches auch durch den Weiltal-Marathon in...
Das Haus
Baujahr
1899
Energie & Heizung
Warum sehe ich diese Anzeige? – Du siehst diese Anzeige basierend auf Ihrer Navigation auf unserer Website und den Suchkriterien, die du verwendet hast.
Energieausweistyp
Bedarfsausweis
Gebäudetyp
Wohngebäude
Baujahr laut Energieausweis
1899
Wesentliche Energieträger
OEL
Gültigkeit
bis 01.02.2035
Effizienzklasse
H
Endenergiebedarf
429,90 kWh/(m²·a)
Weitere Energiedaten
Haustyp
Massivhaus
Energieträger
Öl
Heizungsart
Zentralheizung
Details
Objektbeschreibung
Willkommen in Weilrod-Mauloff, wo Geschichte und Potential aufeinandertreffen.
Dieses einzigartige Wohn- und Geschäftshaus, erbaut im Jahr 1845, bietet Ihnen die seltene Gelegenheit, ein Stück Geschichte zu erwerben und gleichzeitig Ihre eigenen Ideen zu verwirklichen.
Auf einem großzügigen Grundstück, das über...
Ausstattung
- Biergarten im Vorhof zum Einkehren und Verweilen
- mehrere Stellplätze im Hof
- Scheune inkl. Hobbyraum mit Starkstromanschluss und ca. 85 m²
- überdachter Eingangsbereich
- umfangreiche Sanitäranlagen
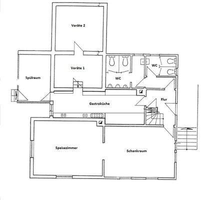
- geräumige Gastroküche mit Durchreiche, angrenzendem Spülraum und Vorratskammern
- 2-fach verglaste...
Preisinformation
6 Stellplätze
Weitere Informationen
Sonstiges
Es liegt ein Energiebedarfsausweis vor.
Dieser ist gültig bis 1.2.2035.
Endenergiebedarf beträgt 429.90 kwh/(m²*a).
Wesentlicher Energieträger der Heizung ist Öl.
Das Baujahr des Objekts lt. Energieausweis ist 1899.
Die Energieeffizienzklasse ist H.
GELDWÄSCHE: Als...
Anbieter der Immobilie
VON POLL IMMOBILIEN Hochtaunus - Carola Öhl
Kreuzgasse 22, 61250 Usingen
Online-ID: 2kwhc5j
Referenznummer: 24 141 060a
Finde Angebote wie dieses
Hier geht es zu unserem Impressum, den Allgemeinen Geschäftsbedingungen, den Hinweisen zum Datenschutz und nutzungsbasierter Online-Werbung.