

Immobilien Moser
Herr Claudius Moser
077 ···
Nr. anzeigenPreise & Kosten
Provision für Käufer
3,57 % inkl. MwSt.
Lage
Die Immobilie befindet sich in ruhiger, naturnaher Lage von Blumberg, südöstlich der Blumberger Kernstadt - direkt an der B27, mit guter Erreichbarkeit zur nahegelegenen B314 und nur etwa 9,4?km von der Grenze zur Schweiz entfernt.
Verkehrsanbindung & Infrastruktur:
Ca.?5?Min. bis zur B27/B314: schnelle...
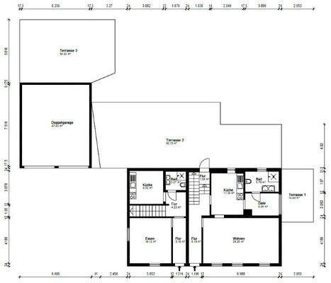
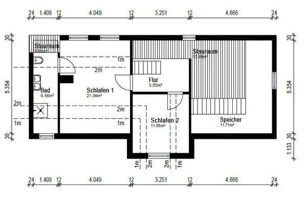
Das Haus
Kategorie
Mehrfamilienhaus
Baujahr
1940
Bezug
Nach Vereinbarung
Energie & Heizung
Warum sehe ich diese Anzeige? – Du siehst diese Anzeige basierend auf Ihrer Navigation auf unserer Website und den Suchkriterien, die du verwendet hast.
Energieausweistyp
Verbrauchsausweis
Gebäudetyp
Wohngebäude
Wesentliche Energieträger
OEL
Gültigkeit
bis 19.07.2035
Effizienzklasse
C
Endenergieverbrauch
99,14 kWh/(m²·a)
Weitere Energiedaten
Energieträger
Öl
Heizungsart
offener Kamin, Zentralheizung
Details
Objektbeschreibung
Zweifamilienhaus mit Charme - ideal für Generationenwohnen und Naturliebhaber
Dieses massiv gebaute Zweifamilienhaus aus ca. 1940 präsentiert sich heute fast vollständig modernisiert - lediglich die Fassade erinnert noch an das Ursprungsbaujahr. Zwei separate Eingänge ermöglichen ein komfortables Wohnen in zwei...
Ausstattung
Modernisierungen & Ausstattung im Überblick
1997: Ausbau des Dachgeschosses
? Neue Stromleitungen
? Erstellung eines zusätzlichen Badezimmers
1998: Erneuerung der Heizungsanlage
2002: Dach vollständig neu gedämmt und eingedeckt
? Verbesserung der...
Weitere Informationen
Sonstiges
Haben Sie eine Immobilie zu veräußern, oder spielen vielleicht mit dem Gedanken dies zu tun? Kontaktieren Sie uns für ein unverbindliches Erstgespräch und die Klärung Ihrer Fragen.
Wir freuen uns darauf, Sie und Ihre Immobilie kennenzulernen.
Stichworte
Energieversorgung mit alternativen Energien...
Anbieter der Immobilie
Immobilien Moser
Kolumban-Schnitzer-Straße 14, 79777 Ühlingen-Birkendorf

Online-ID: 2kwlh5u
Referenznummer: IM-2687
Finde Angebote wie dieses
Hier geht es zu unserem Impressum, den Allgemeinen Geschäftsbedingungen, den Hinweisen zum Datenschutz und nutzungsbasierter Online-Werbung.