
Immobilien Anita Suffa
Frau Anita Suffa
+49 ···
Nr. anzeigenPreise & Kosten
Provision für Käufer
3,57 % Käuferprovision inklusive MwSt. Provision wird fällig bei Kaufvertragsabschluss.
Lage
Die Immobilie befindet sich in zentraler Lage im Herzen von Scheinfeld und profitiert von einer sehr guten Sichtbarkeit sowie einer hohen Passantenfrequenz. Direkt an der Hauptdurchfahrtsstraße gelegen, ist das Objekt sowohl für den Einzelhandel als auch für Dienstleistungsbetriebe attraktiv. Alle Einrichtungen des täglichen...
Das Haus
Kategorie
Einfamilienhaus
Baujahr
1811
Derzeitige Nutzung
frei
Energie & Heizung
Warum sehe ich diese Anzeige? – Du siehst diese Anzeige basierend auf Ihrer Navigation auf unserer Website und den Suchkriterien, die du verwendet hast.
Energieausweistyp
Bedarfsausweis
Gebäudetyp
Wohngebäude
Baujahr laut Energieausweis
1811
Wesentliche Energieträger
Gas
Gültigkeit
29.04.2025 bis 29.04.2035
Effizienzklasse
H
Endenergiebedarf
382,70 kWh/(m²·a)
Weitere Energiedaten
Haustyp
Massivhaus
Energieträger
Gas
Heizungsart
Zentralheizung
Details
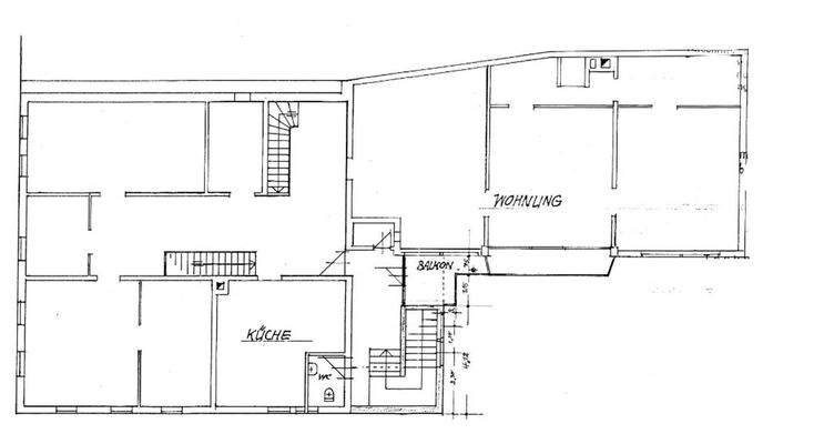
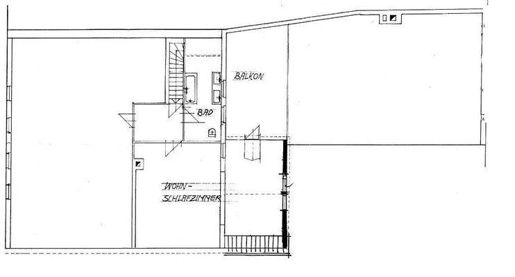
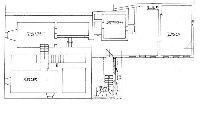
Objektbeschreibung
Ein geschichtsträchtiges Wohn- und Geschäftshaus aus dem Jahr 1811 wartet im Herzen von Scheinfeld auf neue Eigentümer. Seit über zwei Jahrhunderten prägt dieses stattliche Anwesen das Stadtbild der Altstadt und begeistert mit seinem unverwechselbaren Charme vergangener Zeiten. Hinter der historischen Fassade verbergen sich...
Preisinformation
2 Stellplätze
1 Garagenstellplatz
Anbieter der Immobilie

Immobilien Anita Suffa
Karl-Eibl-Straße 50a, 91413 Neustadt an der Aisch
Online-ID: 2kwxr5f
Referenznummer: 108 (1/108)
Finde Angebote wie dieses
Hier geht es zu unserem Impressum, den Allgemeinen Geschäftsbedingungen, den Hinweisen zum Datenschutz und nutzungsbasierter Online-Werbung.