
RIWE Projekt GmbH
Frau Yuliia Rakhlis
015 ···
Nr. anzeigenDieses Angebot ist Teil des Neubauprojekts
Domizil Julius-Krause-Straße
Preise & Kosten
Provision für Käufer
provisionsfrei
Abschreibung/Anlage
als Kapitalanlage geeignet
Lage
Lagebeschreibung
Stünz ist ein dynamischer Stadtteil im Leipziger Osten mit einer guten Anbindung an die östlichen Leipziger Grünräume. Hervorzuheben ist der Volkshain Stünz. Über diesen besteht in Richtung Stadtmitte eine Anbindung an den neu entstehenden Parkbogen Ost. Nach Osten wird entlang der Östlichen Rietzschke der...
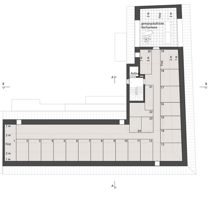
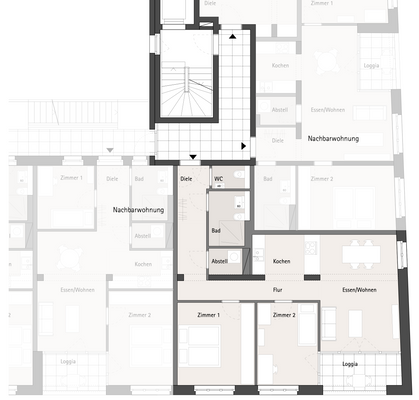
Die Wohnung
Wohnungslage
3. Geschoss
Bezug
2027
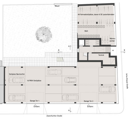
Wohnanlage
Das Neubauprojekt
Energie & Heizung
Warum sehe ich diese Anzeige? – Du siehst diese Anzeige basierend auf Ihrer Navigation auf unserer Website und den Suchkriterien, die du verwendet hast.
Energieausweistyp
Bedarfsausweis
Gebäudetyp
Wohngebäude
Baujahr laut Energieausweis
2027
Wesentliche Energieträger
Strom
Gültigkeit
seit 01.07.2024
Effizienzklasse
A+
Endenergiebedarf
13,00 kWh/(m²·a)
Weitere Energiedaten
Energieträger
Elektro, Solar
Haustyp
KfW 40
Heizungsart
Fußbodenheizung, Luft-/Wasser-Wärmepumpe, Zentralheizung
Details
Objektbeschreibung
Ein nachhaltiges Projekt
Wer baut, übernimmt Verantwortung für die Zukunft. Neben dem Anspruch, ein gestalterisch möglichst zeitloses Gebäude zu schaffen, möchten wir auch konstruktiv nachhaltig bauen. So werden wir die tragende Konstruktion der Wohngeschosse aus Holz ausführen. Dieses wird in den Wohnungen an den Decken...
Ausstattung
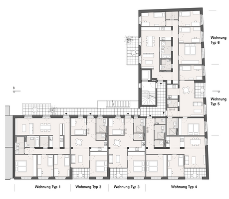
Wohnung Typ 4 mit 3 Zimmern
Die Räume sind zur Loggia hin mit bodentiefen Holzfenstern verglast. Gut nutzbare Abstellräume sind für uns eine Selbstverständlichkeit. So sind zum Beispiel die Dachboden-Kammern rund 6 Quadratmeter groß.
Die Elemente Ihrer Wohnung, die Sie alltäglich berühren, möchten wir so...
Weitere Informationen
Haftungsausschluss
Bitte beachten Sie für weitere Informationen die ausführliche Baubeschreibung. Alle Angaben im Prospekt und den Einlegeblättern sind unverbindlich, ein Anspruch auf identische Erfüllung wird ausgeschlossen. Alle Angaben erheben trotz sorgfältiger Prüfung keinen Anspruch auf Richtigkeit und...
Dokumente
Anbieter der Immobilie
RIWE Projekt GmbH
Nordplatz 9, 04105 Leipzig
Online-ID: 2kx6h55
Referenznummer: Typ 4 OG 3
Finde Angebote wie dieses
Hier geht es zu unserem Impressum, den Allgemeinen Geschäftsbedingungen, den Hinweisen zum Datenschutz und nutzungsbasierter Online-Werbung.