
Rimmo Immobilien
Herr Rupert Stampfer
003 ···
Nr. anzeigenPreise & Kosten
Provision für Käufer
3% + MwSt.
Das Haus
Baujahr
1980
Derzeitige Nutzung
frei
Energie & Heizung
Warum sehe ich diese Anzeige? – Du siehst diese Anzeige basierend auf Ihrer Navigation auf unserer Website und den Suchkriterien, die du verwendet hast.
Weitere Energiedaten
Heizungsart
Etagenheizung
Details
Weitere Informationen
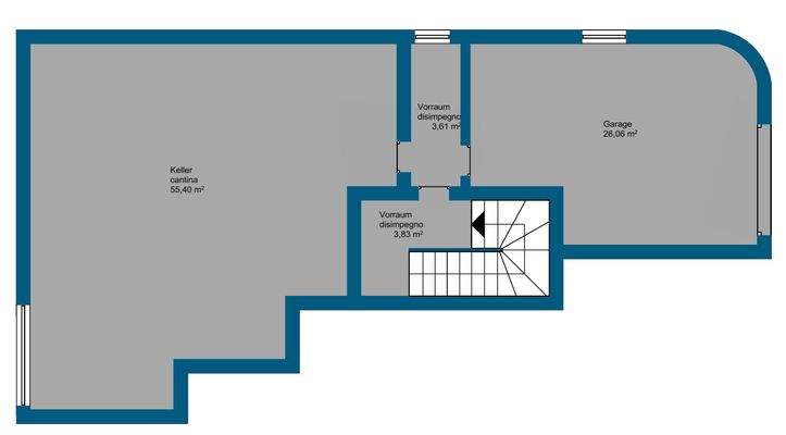
Reihenhaus mit Garten
Dieses gepflegte Reihenhaus aus den 1980er-Jahren befindet sich in einer kleinen, ruhigen Wohnanlage mit nur vier Einheiten – ganz ohne Kondominiumsspesen.
Die Lage der Immobilie ist besonders attraktiv: ruhig gelegen und dennoch nur wenige Schritte vom Ortszentrum von Burgstall entfernt.
Das...
Anbieter der Immobilie
Rimmo Immobilien
Innsbrucker Straße 29, 39100 BOZEN
Online-ID: 2kxfp54
Referenznummer: R06390BURH
Finde Angebote wie dieses
Hier geht es zu unserem Impressum, den Allgemeinen Geschäftsbedingungen, den Hinweisen zum Datenschutz und nutzungsbasierter Online-Werbung.