
Sylvia Ams Immobilien + Vermietungen
Frau Sylvia Ams
072 ···
Nr. anzeigenPreise & Kosten
Provision für Käufer
3,57 % inkl. der gesetzlichen MwSt. von 19%
Lage
Die Gemeinde wird von ca. 10.000 Einwohnern bewohnt.
Öffentliche Verkehrsmittel sind Busse oder das Ast-Taxi. Für die
Bildung stehen eine Grund- und eine Gemeinschaftsschule zur
Verfügung. Es existieren zwei Kindergärten in Oberhausen. Die
Freizeit kann am See oder in verschiedenen Vereinen verbracht
werden.
Das Haus
Kategorie
Mehrfamilienhaus
Geschosse
2 Geschosse
Baujahr
1986
Bezug
nach Kaufpreiszahlung
Derzeitige Nutzung
frei
Energie & Heizung
Warum sehe ich diese Anzeige? – Du siehst diese Anzeige basierend auf Ihrer Navigation auf unserer Website und den Suchkriterien, die du verwendet hast.
Gebäudetyp
Wohngebäude
Weitere Energiedaten
Energieträger
Öl
Heizungsart
Zentralheizung
Details
Objektbeschreibung
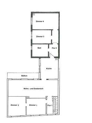
Das ca. 1925 erbaute Gebäude wurde 1965 im Obergeschoss erweitert und 1986 umfangreich an.- und umgebaut. Wodurch die heutige Wohnfläche von 231,42 m² verteilt auf 2 Etagen entstand.
Das sanierungsbedürftige 2 Familienhaus verfügt derzeit über eine Wohnfläche von ca. 86,96 m², verteilt auf 4 ZKB, im Erdgeschoss. Weitere...
Ausstattung
Baujahr:
1925 Baujahr des Vordergebäudes
1966 Erweiterung des Obergeschosses und Anbau eines Balkons - Damals ca. 158,20 m²
1986 Um.- und Erweiterungsbau des bestehenden Wohnhauses - Stand heute 231,42 m²
Wohnfläche:Erdgeschoss: 86,96 m²
Obergeschoss: 144,46 m²
Gesamt: 231,42 m²...
Weitere Informationen
Sonstiges
Der Makler wird auch im Auftrag des Verkäufers tätig. Dieser zahlt
eine Provision in gleicher Höhe der Käuferprovision. Es gilt eine
Gesamtprovision in Höhe von 6% zzgl. MwSt. als vereinbart. Die
angegebene und vereinbarte Käuferprovision ist verdient und
sofort fällig nach Beurkundung des...
Anbieter der Immobilie

Sylvia Ams Immobilien + Vermietungen
Lanzstraße 2a, 68794 Oberhausen-Rheinhausen
Online-ID: 2kxjd5p
Referenznummer: 5187-1
Finde Angebote wie dieses
Hier geht es zu unserem Impressum, den Allgemeinen Geschäftsbedingungen, den Hinweisen zum Datenschutz und nutzungsbasierter Online-Werbung.