

Sterling Immobilien
Herr Maik Sterling
015 ···
Nr. anzeigenPreise & Kosten
Provision für Käufer
Die Käufer-Provision beträgt 3,57 % vom Kaufpreis inkl. MwSt.
Lage
Die angebotene Immobilie befindet sich in der malerischen Region Südheide, die bekannt ist für ihre beeindruckende Natur und hohe Lebensqualität. Eingebettet in eine idyllische Landschaft aus Wäldern, Heideflächen und sanften Hügeln bietet dieser Standort eine perfekte Kombination aus Ruhe und Erholung.
Die charmanten...
Das Haus
Kategorie
Einfamilienhaus
Baujahr
1964
Energie & Heizung
Warum sehe ich diese Anzeige? – Du siehst diese Anzeige basierend auf Ihrer Navigation auf unserer Website und den Suchkriterien, die du verwendet hast.
Energieausweistyp
Bedarfsausweis
Gebäudetyp
Wohngebäude
Wesentliche Energieträger
Holzpellets
Gültigkeit
24.05.2021 bis 23.05.2031
Effizienzklasse
G
Endenergiebedarf
233,10 kWh/(m²·a)
Weitere Energiedaten
Energieträger
Pellets
Details
Objektbeschreibung
Einfamilienhaus mit großem Grundstück, Südwestterrasse, Warmluft-Kamin und Pelletheizung - ruhige Lage in Hermannsburg, Südheide
Lage
Dieses Einfamilienhaus liegt in einer ruhigen Anliegerstraße von Hermannsburg - einem Ort am Rand der Südheide, der für seine gute Infrastruktur und naturnahe Umgebung geschätzt wird...
Ausstattung
Eckdaten
Objekttyp:
Einfamilienhaus, freistehend
Bauweise:
Massivbauweise, Baujahr ca. 1964
Grundstück:
Ca. 920 Quadratmeter, vollständig eingefriedet
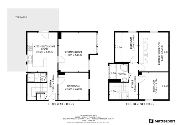
Wohnfläche:
. Ca. 110 Quadratmeter Wohnfläche
(inkl. Eingangsbereich / Garderobe im Erdgeschoss, nicht im Grundriss ausgewiesen)
...
Weitere Informationen
Sonstiges
Alle Daten in diesem Exposé beruhen auf Angaben des Eigentümers der Immobilie. Die Angaben zum Objekt sind von uns, Sterling-Immobilien.de, mit großer Sorgfalt zusammengestellt worden. Wir übernehmen keine Haftung für die Angaben des Angebotes, welche uns der Verkäufer/Anbieter übermittelt hat. Irrtümer bleiben...
Dokumente
Anbieter der Immobilie
Sterling Immobilien
Drosselweg 4, 06467 Hoym

Online-ID: 2kxju5r
Referenznummer: SI-918
Finde Angebote wie dieses
Hier geht es zu unserem Impressum, den Allgemeinen Geschäftsbedingungen, den Hinweisen zum Datenschutz und nutzungsbasierter Online-Werbung.